noticias

Artboard 2
Artboard 3
Artboard 4
Artboard 5
Artboard 6
Artboard 7
Artboard 8
Artboard 9
Artboard 10
Artboard 11
Artboard 1
previous arrow
next arrow

APOLLO Architects: Una casa introspectiva en Tokio

 

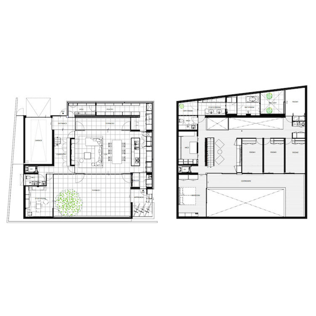
Esta casa en un tranquilo barrio residencial del centro de Tokio fue construida para una pareja que había vivido mucho tiempo en la propiedad pero que quería reconstruirla al entrar en una nueva fase de la vida después de que sus tres hijos se fueran de casa. El diseño exterior simple compuesto por dos volúmenes masivos apilados uno encima del otro aprovecha el lote de esquina, con una fachada de hormigón visto impresa con encofrado de cedro. Las ventanas que dan al exterior se limitan a rendijas horizontales para preservar la privacidad y aumentar la seguridad.

En el interior, la casa está definida por dos patios, uno grande y otro pequeño, que se disponen en paralelo. El patio principal está en el lado sur y cuenta con un bosque de bambú que llama la atención cuando uno entra en la entrada. Debido a que la sala de estar, el estudio y los dormitorios dan a este patio, los clientes y su perro pueden disfrutar del tiempo al aire libre cuando lo deseen. Un patio más pequeño en forma de hendidura en el lado norte también está salpicado de plantas y sirve como pozo de luz, llenando la sala de estar del primer piso y la entrada, así como una segunda sala de estar en el piso superior con una luz agradable y difusa.

Los aleros profundos sobre las ventanas de arriba que dan al sur bloquean la luz solar directa, dando a la sala de estar del primer piso una atmósfera formal y tenue. Por el contrario, la sala de estar de arriba es más informal y tiene un balcón en la azotea adjunto, lo que le da al segundo piso un ambiente diferente. Esto permite a los residentes la libertad de moverse por la casa durante el transcurso del día, pasando el tiempo donde se sientan más cómodos.

En la era post-covid, los clientes residenciales están menos interesados en habitaciones con funciones claras o casas que son meras colecciones de habitaciones individuales. Las familias quieren hogares donde puedan pasar tiempo de calidad significativo, manteniendo tanto la distancia como la cercanía mientras cruzan casualmente entre espacios interiores y exteriores casi como si estuvieran viajando dentro de su propia casa. Creemos que este tipo de entorno libre es lo que los clientes buscarán en la arquitectura residencial en los próximos años.

 

Las obras de APOLLO arquitectos & asociados recibieron los siguientes premios en 2021:


14th IDA International Design Awards (EE. UU.): ”ORTHO”, Premio Bronce
PREMIO BUEN DISEÑO 2021 (Japón): Ganador ”NOBLE”
El 11. ° Premio Internacional de Diseño Espacial (Idea-Tops) (China): Nominado al Mejor Diseño de Villa «ORTHO»
DFA Design for Asia Awards 2021(Hong Kong): “INFINITY”, Premio de Plata
LOOP Design Awards Mención de honor 2021 (Portugal): Ganador «ORTHO»
Premio de Diseño DNA Paris 2021(Italia): Ganador “ORTHO”
A’ DESIGN AWARD 2021 (Italia): Ganador de plata «ORTHO»
PREMIO DE DISEÑO iF 2021 (Alemania): Ganador de «PORTADA»

et al. presenta a Nuy: la nueva silla diseñada por Marco Acerbis

El diseño parte de la idea de una «Y invertida», un signo estructural y simbólico que define la estructura de madera de fresno. No se trata de un elemento gráfico, sino de una precisa elección constructiva: centra la forma, distribuye las cargas y enraíza la silla en el espacio. La geometría se pliega hacia abajo, creando equilibrio y estabilidad.

Revista Trama 192: Museos en el mundo

La relación de la arquitectura con el paisaje y el entorno en este conjunto de museos es sustantiva en tanto las propuestas potencian los valores de cada uno y su interacción, siendo la escala elemento principal. Los emplazamientos vinculados a permanencias históricas establecen conexiones y características del objeto de diseño en un diálogo potente.

MVRDV: El Edificio “Inaura” revela una visión refinada de la icónica torre urbana

MVRDV ha ganado el concurso para diseñar Inaura, un hotel de lujo y torre residencial en el centro de Dubai. Inaura ocupa una posición crítica en el horizonte de Dubai, y es claramente visible desde – y tiene sus propias vistas hacia – el Burj Khalifa y la Fuente de Dubai. Sin embargo, con 210 metros de altura, el proyecto se encuentra entre vecinos más altos, que compiten por llamar la atención. Por lo tanto, el diseño adopta un enfoque diferente para reclamar su lugar en la ciudad: un orbe luminoso con forma de joya ubicado entre los pisos del edificio, creando una forma novedosa y curiosa de robar la atención de los espectadores.

Entrevista a Rómulo Moya Peralta a propósito de 100 casas latinoamericanas

Por Sofiya Klymuk. En la oficina de Trama, en Bellavista, en Quito, con una vista espectacular de la ciudad, nos recibe el arquitecto Rómulo Moya Peralta, quien, según sus propias palabras, ¡es un quiteño más! La conversación, que transcurre en un tono coloquial y por momentos académico, revela la pasión que siente por la arquitectura en general y por la latinoamericana en particular.

Comienza la construcción del Centro de Artes Escénicas Diego Rivera un proyecto de LMN architects

Ubicado en la calle Frida Kahlo, en un nuevo recinto académico, el Centro de Artes Escénicas Diego Rivera está diseñado para ser el corazón cultural del campus del CCSF. El proyecto proporcionará una base central para los departamentos de música y teatro, con tres salas de espectáculos de vanguardia: una sala multiusos con capacidad para 600 personas, un teatro estudio con capacidad para 150 personas y una sala de recitales con capacidad para 100 personas, además de espacios educativos y oficinas administrativas. El vestíbulo abierto y acristalado del edificio exhibirá el mural de la Unidad Panamericana de Diego Rivera, invitando tanto a la comunidad universitaria como al público a disfrutar de esta histórica obra de arte.

La Arquitectura de Groenlandia: Valores Vernáculos, Respuestas Contemporáneas y Adaptación al Entorno

La arquitectura de Groenlandia, moldeada por un entorno ártico extremo y una historia de colonización, representa un tema de creciente relevancia en el contexto geopolítico actual. Groenlandia, el territorio autónomo más grande del mundo dentro del Reino de Dinamarca, se ha convertido en un «botín territorial» codiciado, particularmente por Estados Unidos, que ha expresado intenciones de anexión para asegurar recursos minerales, posiciones estratégicas en el Ártico y contrarrestar la influencia de Rusia y China. El presidente Trump ha reiterado que el control estadounidense es una «necesidad absoluta» para la seguridad nacional de Estados Unidos, reviviendo propuestas de compra o incluso intervención militar. Esta tensión geopolítica subraya la validez del estudio de su arquitectura, no solo como expresión cultural, sino como un activo estratégico que refleja la resiliencia de los groenlandeses ante cambios climáticos y presiones externas.

El Puerto Espacial de Ecuador 2030: ¿Salto al futuro o promesa en el aire?

Ecuador ha vuelto a poner su mirada en las estrellas. Según reportes recientes de Ecuavisa, el país proyecta la construcción de su primer puerto espacial para el año 2030. La noticia no es un rumor; se basa en alianzas estratégicas entre la empresa ecuatoriana Leviathan Space Industries y la estadounidense Blackstar Orbital. Sin embargo, detrás del entusiasmo de los titulares, surge un análisis necesario sobre la realidad económica y técnica de este «hito histórico».

La Silla Búho (Owl Chair)

Como país con acceso limitado a la tierra y a los recursos naturales, Japón ha desarrollado una rica cultura basada en la herencia de la creatividad. Conceptos como el Furoshiki (una tela capaz de envolver cualquier objeto) y el Origami (una hoja de papel que cobra vida al doblarse) son símbolos de cómo alcanzar resultados máximos bajo circunstancias limitadas.