noticias

Artboard 13
Artboard 14
Artboard 15
Artboard 17
Artboard 20
Artboard 16
Artboard 1
Artboard 2
Artboard 3
Artboard 4
Artboard 5
Artboard 6
Artboard 7
Artboard 8
Artboard 9
Artboard 10
Artboard 11
Artboard 12
Artboard 18
Artboard 19
Artboard 21
Artboard 22
Artboard 23
Artboard 24
Artboard 25
Artboard 26
Artboard 31
Artboard 27
Artboard 28
Artboard 29
Artboard 30
previous arrow
next arrow

El diseño del Pabellón Alemán en la  Expo 2020 encarna el mensaje de sostenibilidad

Por: LAVA (Laboratory for visionary architecture)

 

El diseño de LAVA del pabellón alemán en la Expo 2020 de Dubái es un conjunto de cubos suspendidos, un bosque de postes de acero, cubiertos por un techo flotante. Y detrás de estos elementos de diseño visualmente emocionantes, todo, desde el uso inteligente de las condiciones climáticas locales hasta la reutilización de materiales y la conectividad, es sostenible.

«La pregunta clave era cómo diseñar una exposición temporal y un espacio para eventos para hasta tres millones de visitantes en un entorno desértico que fuera sostenible. La solución de LAVA vinculó el tema de la Expo de conectividad, con nuestro enfoque de ‘más con menos’, con la interacción de los seres humanos con la naturaleza y la tecnología en su corazón ”, dijo Tobias Wallisser, director de LAVA.

1. EDIFICIO COMO EXPOSICIÓN: SOSTENIBILIDAD SOCIAL

“El diseño del edificio es parte de la exposición, una herramienta para conectar a las personas”.

“Queríamos abordar el lema de la Expo ‘Conectando mentes, creando el futuro’, por lo que elegimos representar a Alemania como un ‘campus’, un lugar abierto para el intercambio de conocimientos, ideas e innovaciones. En lugar de colocar los edificios horizontalmente a lo largo de un sitio, se ensamblan tres cubos suspendidos verticalmente. Este apilamiento suelto y poroso de volúmenes, un conjunto en lugar de una sola forma, sugiere interconexión ”, dijo Christian Tschersich, director de proyectos de LAVA.

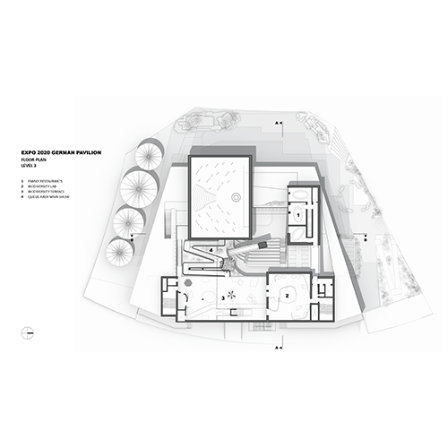
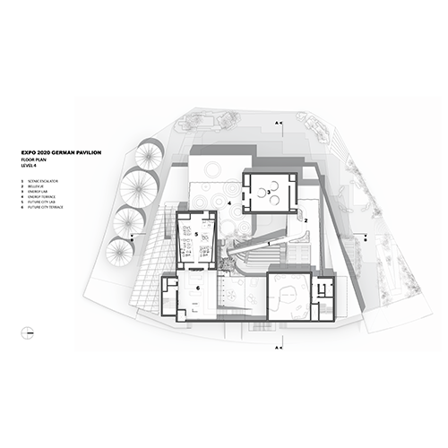
El posicionamiento de los cubos en voladizo genera un espacioso atrio central para reuniones y eventos. En el corazón de la experiencia del visitante, este espacio vertical cubierto conecta visualmente todas las áreas funcionales entre sí, ayuda a encontrar el camino, crea diversas relaciones visuales y puntos de acceso, y ayuda con la gestión de un gran número de visitantes.

La ruta de los visitantes lleva a las personas continuamente a las terrazas (en la parte superior de los espacios en cubos). Ven su trayectoria pasada y futura, se relacionan con otras personas y disfrutan de las vistas del sitio de la Expo. Los espacios de exhibición, diseñados por hechos y ficción, (Energy Lab, Future City Lab y Biodiversity Lab) presentan experiencias de inmersión individuales dentro de los cubos, mientras que las exhibiciones en la terraza invitan a la interacción grupal.

En lugar de una sala de exposiciones tradicional, la metáfora del campus ve todo el edificio como una exhibición, no solo un lienzo para exhibir, sino una herramienta para conectar personas y contenido, y un lugar para experimentar las innovaciones alemanas.

2. EDIFICIO COMO EXPOSICIÓN: SOSTENIBILIDAD ESTRUCTURAL

La estructura real es el mensaje.

“Incorporamos el principio de sostenibilidad desde el principio utilizando la mínima cantidad de material para crear el máximo volumen. LAVA es ‘más con menos’ ”, dijo Tschersich.

Se apilaron tres cubos sobre un pedestal con otras funciones (restaurante, antes del espectáculo, oficina, parte trasera de la casa) formadas como un paisaje abstracto. Esto creó un gran volumen en el centro y un techo crea sombra y comodidad: una nube técnica. Un sándwich de tres partes: paisaje – cubos apilados – techo. Gente entre naturaleza y tecnología.

El posicionamiento inteligente de los cubos apilados es impulsado por el clima local y presenta características pasivas de ahorro de energía que reducen el impacto de la luz solar directa, generan sombra natural, disminuyen la carga de calor y optimizan el clima interior. Esta creación inteligente de sombra por los elementos del edificio también hace posible la climatización “híbrida”. También hace referencia al diseño de la casa con patio local, con fachadas exteriores cerradas y habitaciones orientadas hacia un espacio aéreo interior que se abren entre sí.

Una fachada híbrida minimiza la sensación de volumen del edificio y crea un marco icónico del espacio. En el nivel superior una disposición dinámica de 900 postes verticales de acero, un bosque de árboles meciéndose con el viento, crea movimiento. Con ángulos que cambian gradualmente, enmarcan el espacio del atrio central y modulan la luz.

Se puede abrir y cerrar una membrana de ETFE opaca, trapezoidal de una sola capa, que responde a diferentes condiciones climáticas durante el período de exposición de seis meses, como tormentas de arena y días más fríos, y minimiza la necesidad de aire acondicionado. La carcasa exterior del pabellón también incluye elementos de vidrio de 1,5 metros de ancho que se pueden girar y abrir, lo que permite que el edificio respire.

El techo de nubes técnico visualmente impactante crea sombra y comodidad. Permite que la luz del día ingrese al interior a través de múltiples aberturas pequeñas, similar a la luz del sol que penetra en el dosel de un bosque, creando una experiencia de visitante en constante cambio. Las superficies de los espejos reflejan la luz solar directa contra la piel del techo, una interacción dinámica de luz. Por la noche, un campo de luces LED integradas en el techo hacen que el edificio irradie desde el interior.

El consumo de recursos y la economía circular también fueron los principales impulsores del diseño y se reflejan en numerosas características de sostenibilidad pasivas y activas, desde Diseño para Desmontaje (DfD) hasta “Extraer la chatarra”, “energía gris”, materiales de construcción sostenibles y reutilizables. El 95% del edificio se reutilizará una vez finalizada la Expo, con elementos de construcción estandarizados, como postes de acero, desmantelados y reconfigurados en diferentes geometrías.

El enfoque ascendente de LAVA se centró en la comodidad del visitante, la tecnología al servicio de los seres humanos. “En LAVA siempre buscamos la interacción entre las personas y el entorno físico en el que viven. La sostenibilidad requiere que los entornos sean adaptables y cambiantes ”, agregó Wallisser.

La transición del exterior caliente al interior se consideró cuidadosamente. Para reducir el choque de temperatura y ahorrar en costos de energía, los arquitectos diseñaron un espacio de transición donde los visitantes que ingresan al edificio, con largas colas, son enfriados por una suave neblina de agua que emana de postes de acero, lo que les permite aclimatarse gradualmente. El atrio central se enfría mediante el aire frío expulsado de los espacios de exposición con aire acondicionado, lo que reduce el uso de energía y mejora la comodidad de los visitantes.

“Un volumen de espacio apilado de manera eficiente, que responde al entorno local con un sistema inteligente de gestión del clima. Este proyecto muestra cómo los edificios pueden optimizarse, hacerse inteligentes, reconfigurarse y adaptarse a los usuarios, los entornos, las temperaturas, la acústica y la luz cambiantes ”, dijo Alexander Rieck, director de LAVA.

Chris Bosse, director de LAVA, añadió: «Los requisitos funcionales, la experiencia del visitante, las preocupaciones climáticas y medioambientales se resuelven a través de este inteligente diseño multi-performativo».

Wallisser agregó: “La arquitectura no es simplemente una fachada. ¡Por supuesto que queríamos que el edificio fuera apto para Instagram! Pero también innovador, que invita a la reflexión, con una calidad experiencial eficaz. El hardware del edificio crea un viaje para visitantes de todo el mundo «.

El concepto continúa con las innovaciones en el diseño del pabellón, desde el Crystal Palace de Londres hasta el pabellón alemán de Mies van der Rohe en la Expo ’29 de Barcelona y Frei Otto en la Expo ’67 de Montreal.

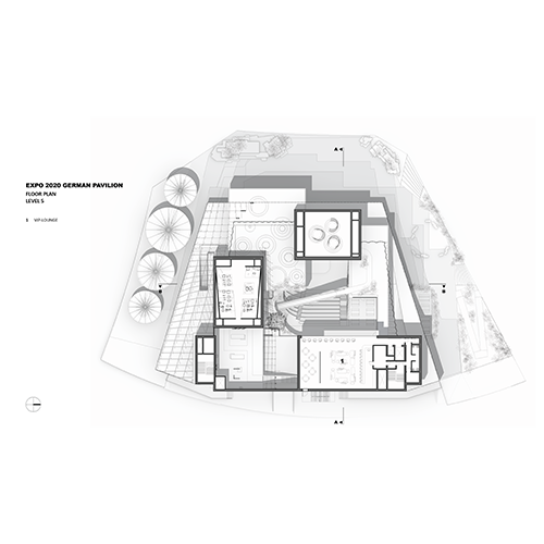
El Pabellón Alemán también alberga un restaurante de tres niveles, espacios VIP para reuniones de negocios, espacios de trabajo para el personal. Está ubicado en la sección de sostenibilidad, cerca de Al Wasl Plaza, que forma el corazón del sitio de la Expo. La Expo 2020 Dubai del 1 de octubre de 2021 al 31 de marzo de 2022 se divide en tres distritos: sostenibilidad, movilidad y oportunidad, con exposiciones de más de 190 países.

El Ministerio Federal de Economía y Energía encargó a Koelnmesse GmbH la organización y gestión del Pabellón Alemán. El «Consorcio de Dubai de la Expo 2020 del Pabellón Alemán», que comprende hechos y ficción GmbH y NUSSLI Adunic AG, está a cargo del diseño, la planificación y la realización del concepto. hechos y ficción es responsable del diseño de contenidos, exposiciones y medios, y el pabellón fue construido por NUSSLI Adunic, con arquitectura y diseño espacial por LAVA.

EXPOSICIÓN

TEXTO DE HECHOS Y FICCIÓN

Centradas en el tema de la sostenibilidad, las exposiciones interactivas en las áreas temáticas de la energía, la ciudad del futuro y la biodiversidad muestran innovaciones sostenibles “Made in Germany”. El pabellón es un lugar de conocimiento, investigación e intercambio de acuerdo con el lema de la Expo 2020 Dubai: “Conectando mentes, creando el futuro”. Los visitantes son llevados en un viaje interactivo desde la «inscripción» en el pabellón hasta la «ceremonia de graduación» al final del recorrido. Participan activamente y experimentan ser parte de una comunidad comprometida con un futuro más sostenible.

El visitante inicia la experiencia incluso antes de entrar al pabellón. Aquí, los estados federales se presentan en forma de estaciones de audio, aplicaciones de realidad virtual, mesas interactivas y películas. A continuación, el personal del pabellón “inscribe” a los visitantes y les proporciona su propia etiqueta con su nombre.
Integrado en la etiqueta de identificación se encuentra el innovador sistema IAMU: el Realtime Locating System (RTLS) convierte a CAMPUS GERMANY en un espacio de exposición inteligente e interactivo. Entre otros, IAMU inicia automáticamente el contenido multimedia en el idioma del invitado respectivo. Además, se invita a los visitantes en varios puntos a aportar su opinión mediante el voto.
Después de un evento de presentación, sigue una piscina de bolas. Cada una de las 100.000 bolas contiene un dato sobre la sostenibilidad en y desde Alemania. El Laboratorio de Energía, el Laboratorio de la Ciudad del Futuro y el Laboratorio de Biodiversidad, representan el “plan de estudios” real del Campus y cuentan con más de 50 exhibiciones interactivas. Cada uno de ellos muestra una idea innovadora y sostenible de Alemania, cuya implementación se acerca a los visitantes de una manera lúdica. Cada uno de los laboratorios también tiene su propia idea de diseño. Espacios cerrados e inmersivos caracterizados por un alto grado de diversidad, se alternan con terrazas abiertas que ofrecen una vista al atrio.
Finalmente, en el “Graduation Hall”, los visitantes experimentan una actuación sorprendente y emotiva en la que la combinación de tecnología, comunidad y la idea de sustentabilidad llega a su clímax. Los visitantes se sientan en columpios en un espectáculo impresionante y comienzan a moverse juntos por un futuro más sostenible.
Página 3 de 4

 DATOS DEL PROYECTO!
NOMBRE DEL PROYECTO Pabellón Alemán Expo 2020

MINISTERIO Ministerio Federal de Economía y Energía (BMWi) GESTIÓN Koelnmesse GmbH

UBICACIÓN Dubai, Emiratos Árabes Unidos
CONSORCIO DE CLIENTES hechos y ficción

ion con NUSSLI ADUNIC STATUS Construido en 2021
TAMAÑO 4.600m2; altura del edificio 27 m
CRÉDITOS DE PRÁCTICA DE LAVA
Tobias Wallisser, Alexander Rieck, Chris Bosse con Christian Tschersich
Equipo de proyecto: Maria Pachi, Ahmed Rihan, Niklas Knap, Daniele Colombati, Wassef Dabboussi Equipo de competencia: Maria Pachi, Christina Ciardullo, Courtney Jones, Jed Finanne, Benjamin Riess, Joanna Rzewuska. Dibujos: Johannes Bitterer
SOCIOS:
Diseño conceptual, planificación e implementación – hechos y ficción / ingenieros estructurales NUSSLI – schlaich bergermann partner
Clima – Transsolar
Reutilización: determinadas medidas
MEP – energytec
Fuego – Steinlehner
Luz – Kardorff Ingenieure
Dibujos – © hechos y ficción | NUSSLI Adunic | LAVA |
Créditos de las imágenes – © Taufik Kenan; © Roland Halbe; © hechos y ficción NUSSLI Fotógrafo Adunic Andreas Keller

La práctica internacional galardonada LAVA fue fundada en 2007 por los directores Tobias Wallisser, Alexander Rieck y Chris Bosse y fue el Laureado de Arquitectura Europea de 2016. LAVA combina el flujo de trabajo digital, los principios estructurales de la naturaleza y las últimas tecnologías de fabricación digital para construir MÁS CON MENOS: más (arquitectura) con menos (material / energía / tiempo / costo). Www.l-a-v-a.net

et al. presenta a Nuy: la nueva silla diseñada por Marco Acerbis

El diseño parte de la idea de una «Y invertida», un signo estructural y simbólico que define la estructura de madera de fresno. No se trata de un elemento gráfico, sino de una precisa elección constructiva: centra la forma, distribuye las cargas y enraíza la silla en el espacio. La geometría se pliega hacia abajo, creando equilibrio y estabilidad.

Revista Trama 192: Museos en el mundo

La relación de la arquitectura con el paisaje y el entorno en este conjunto de museos es sustantiva en tanto las propuestas potencian los valores de cada uno y su interacción, siendo la escala elemento principal. Los emplazamientos vinculados a permanencias históricas establecen conexiones y características del objeto de diseño en un diálogo potente.

MVRDV: El Edificio “Inaura” revela una visión refinada de la icónica torre urbana

MVRDV ha ganado el concurso para diseñar Inaura, un hotel de lujo y torre residencial en el centro de Dubai. Inaura ocupa una posición crítica en el horizonte de Dubai, y es claramente visible desde – y tiene sus propias vistas hacia – el Burj Khalifa y la Fuente de Dubai. Sin embargo, con 210 metros de altura, el proyecto se encuentra entre vecinos más altos, que compiten por llamar la atención. Por lo tanto, el diseño adopta un enfoque diferente para reclamar su lugar en la ciudad: un orbe luminoso con forma de joya ubicado entre los pisos del edificio, creando una forma novedosa y curiosa de robar la atención de los espectadores.

Entrevista a Rómulo Moya Peralta a propósito de 100 casas latinoamericanas

Por Sofiya Klymuk. En la oficina de Trama, en Bellavista, en Quito, con una vista espectacular de la ciudad, nos recibe el arquitecto Rómulo Moya Peralta, quien, según sus propias palabras, ¡es un quiteño más! La conversación, que transcurre en un tono coloquial y por momentos académico, revela la pasión que siente por la arquitectura en general y por la latinoamericana en particular.

Comienza la construcción del Centro de Artes Escénicas Diego Rivera un proyecto de LMN architects

Ubicado en la calle Frida Kahlo, en un nuevo recinto académico, el Centro de Artes Escénicas Diego Rivera está diseñado para ser el corazón cultural del campus del CCSF. El proyecto proporcionará una base central para los departamentos de música y teatro, con tres salas de espectáculos de vanguardia: una sala multiusos con capacidad para 600 personas, un teatro estudio con capacidad para 150 personas y una sala de recitales con capacidad para 100 personas, además de espacios educativos y oficinas administrativas. El vestíbulo abierto y acristalado del edificio exhibirá el mural de la Unidad Panamericana de Diego Rivera, invitando tanto a la comunidad universitaria como al público a disfrutar de esta histórica obra de arte.

La Arquitectura de Groenlandia: Valores Vernáculos, Respuestas Contemporáneas y Adaptación al Entorno

La arquitectura de Groenlandia, moldeada por un entorno ártico extremo y una historia de colonización, representa un tema de creciente relevancia en el contexto geopolítico actual. Groenlandia, el territorio autónomo más grande del mundo dentro del Reino de Dinamarca, se ha convertido en un «botín territorial» codiciado, particularmente por Estados Unidos, que ha expresado intenciones de anexión para asegurar recursos minerales, posiciones estratégicas en el Ártico y contrarrestar la influencia de Rusia y China. El presidente Trump ha reiterado que el control estadounidense es una «necesidad absoluta» para la seguridad nacional de Estados Unidos, reviviendo propuestas de compra o incluso intervención militar. Esta tensión geopolítica subraya la validez del estudio de su arquitectura, no solo como expresión cultural, sino como un activo estratégico que refleja la resiliencia de los groenlandeses ante cambios climáticos y presiones externas.

El Puerto Espacial de Ecuador 2030: ¿Salto al futuro o promesa en el aire?

Ecuador ha vuelto a poner su mirada en las estrellas. Según reportes recientes de Ecuavisa, el país proyecta la construcción de su primer puerto espacial para el año 2030. La noticia no es un rumor; se basa en alianzas estratégicas entre la empresa ecuatoriana Leviathan Space Industries y la estadounidense Blackstar Orbital. Sin embargo, detrás del entusiasmo de los titulares, surge un análisis necesario sobre la realidad económica y técnica de este «hito histórico».

La Silla Búho (Owl Chair)

Como país con acceso limitado a la tierra y a los recursos naturales, Japón ha desarrollado una rica cultura basada en la herencia de la creatividad. Conceptos como el Furoshiki (una tela capaz de envolver cualquier objeto) y el Origami (una hoja de papel que cobra vida al doblarse) son símbolos de cómo alcanzar resultados máximos bajo circunstancias limitadas.