noticias

Artboard 1
Artboard 2
Artboard 3
Artboard 4
Artboard 5
Artboard 1
Artboard 2
Artboard 3
Artboard 4
Artboard 5
Artboard 1
previous arrow
next arrow

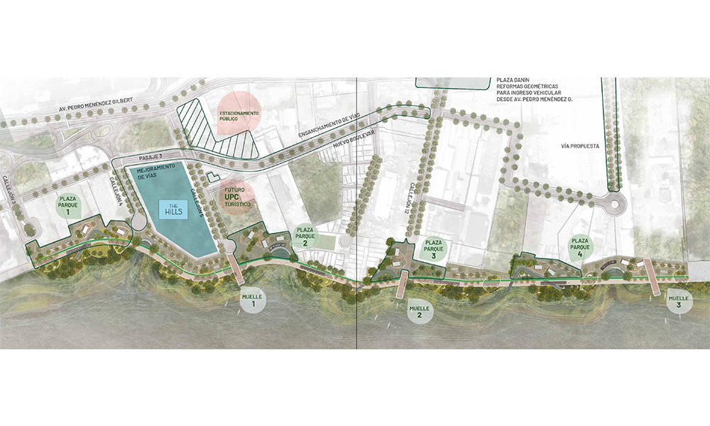
The Hills en Guayaquil. Primer proyecto de MVRDV en Latinoamérica

La desarrolladora inmobiliaria Uribe Schwarzkopf está en Guayaquil y presenta The Hills, un proyecto diseñado conjuntamente con la firma de arquitectura y urbanismo holandesa, MVRDV. The Hills es único, ecoeficiente y sostenible, y formará parte del perfil de esta gran ciudad que inspira y brilla con luz propia.


El proyecto está inspirado en la diversidad de la ciudad: cerros frente al río, modernos rascacielos que se alzan frente a pintorescas casas tradicionales, estructuras hechas por el hombre contra una exuberante vegetación tradicional de la zona.

 

El diseño se propone

 

Conectar el proyecto con las calles circundantes. Agregar diferentes alternativas comerciales. Incluir áreas comunales que destaquen. Ajustar alturas que se conecten hacia el río. Vistas despejadas: las torres se miran entre sí, hacia el río y hacia la ciudad. Vistas optimizadas desde los apartamentos más bajos de las torres. Diseño de esquinas redondeadas para optimización de viento y seguridad. Degradé de colores en fachada: corte vertical de capas de tierra. Composición de balcones: optimizar la generación de sombras y generar escala humana. Diseño de esquinas especiales: integrar la calle al área comercial y crear espacios públicos atractivos. Un espacio verde: vegetación en techos, terrazas y balcones, que se desbordan sobre el río.


El conjunto se compone de seis torres de uso mixto, que se elevan a medida que se alejan de la orilla para aprovechar al máximo las vistas que el río y la ciudad ofrecen. La fachada exterior del conjunto se caracteriza por sus líneas limpias y su color blanco, ocupando un lugar entre la arquitectura moderna del dinámico Puerto Santa Ana.

 

Por el contrario, el espacio interior entre torres, está definido por curvas naturales y orgánicas, retrocesos y volados irregulares, balcones en tonos tierra y abundante vegetación.
En la base del proyecto,las torres se fusionan para formar un valle verde aterrazado que contiene un oasis de piscinas, canchas deportivas y un pequeño parque frente al río, todo rodeado de una variada vegetación. Dentro de esta base se ubicará una plaza comercial, un importante Club House, y una serie de amenities para brindar la mejor de las experiencias
a sus residentes.


Con los balcones a la sombra, torres diseñadas para mejorar la ventilación y vegetación para provocar una sensación refrescante al interior y exterior del proyecto.
The Hills ofrece un ambiente cómodo tanto para sus residentes como para sus visitantes.


A su vez, la gran variedad de departamentos, sus extensas áreas comunales, el programa público vibrante y las numerosas opciones de comercio y servicios, garantizan un ambiente social animado, lo que forma un destino importante para los habitantes de la ciudad y un hogar invaluable para los propios residentes de The Hills.

ACERCA DE MVRDV


MVRD fue fundada en 1993 por Winy Maas Jacob van Rijs y Nathalie de Vries. Con sede en Rotterdam, Países Bajos, tienen un alcance global y brindan soluciones a problemas arquitectónicos y urbanos en todas las regiones del mundo. Su método de diseño altamente colaborativo y basado en la investigación, involucra a clientes, partes interesadas y expertos de una amplia gama de campos desde el principio del proceso creativo. Los resultados son proyectos ejemplares que permiten que nuestras ciudades y paisajes se proyecten hacia el futuro. El trabajo de MVRDV se exhibe y pública en todo el mundo y ha recibido numerosos premios internacionales. Trescientos cincuenta proyectos en proceso de diseño multidisciplinario y colaborativo que involucran una rigurosa investigación técnica y creativa. MVRDV trabaja con BIM y cuenta con asesores oficiales internos BREEAM y LEED.

https://www.mvrdv.com/news/4075/first-project-south-america-guayaquil-ecuador


ACERCA DE URIBE SCHWARZKOPF


En Uribe Schwarzkopf creamos oportunidades para que las personas hagan de la ciudad, su hogar, su hábitat y su futuro. Nuestra misión es construir al Ecuador hacia adelante y hacia lo alto, como un país en el centro del mundo. Promovemos un urbanismo saludable, diseñando edificios de calidad que brindan un mejor estilo de vida a sus habitantes. Establecemos nuevos puntos de referencia arquitectónicos y ambientales para la ciudad. Permitimos que las comunidades y los vecindarios prosperen.

et al. presenta a Nuy: la nueva silla diseñada por Marco Acerbis

El diseño parte de la idea de una «Y invertida», un signo estructural y simbólico que define la estructura de madera de fresno. No se trata de un elemento gráfico, sino de una precisa elección constructiva: centra la forma, distribuye las cargas y enraíza la silla en el espacio. La geometría se pliega hacia abajo, creando equilibrio y estabilidad.

Revista Trama 192: Museos en el mundo

La relación de la arquitectura con el paisaje y el entorno en este conjunto de museos es sustantiva en tanto las propuestas potencian los valores de cada uno y su interacción, siendo la escala elemento principal. Los emplazamientos vinculados a permanencias históricas establecen conexiones y características del objeto de diseño en un diálogo potente.

MVRDV: El Edificio “Inaura” revela una visión refinada de la icónica torre urbana

MVRDV ha ganado el concurso para diseñar Inaura, un hotel de lujo y torre residencial en el centro de Dubai. Inaura ocupa una posición crítica en el horizonte de Dubai, y es claramente visible desde – y tiene sus propias vistas hacia – el Burj Khalifa y la Fuente de Dubai. Sin embargo, con 210 metros de altura, el proyecto se encuentra entre vecinos más altos, que compiten por llamar la atención. Por lo tanto, el diseño adopta un enfoque diferente para reclamar su lugar en la ciudad: un orbe luminoso con forma de joya ubicado entre los pisos del edificio, creando una forma novedosa y curiosa de robar la atención de los espectadores.

Entrevista a Rómulo Moya Peralta a propósito de 100 casas latinoamericanas

Por Sofiya Klymuk. En la oficina de Trama, en Bellavista, en Quito, con una vista espectacular de la ciudad, nos recibe el arquitecto Rómulo Moya Peralta, quien, según sus propias palabras, ¡es un quiteño más! La conversación, que transcurre en un tono coloquial y por momentos académico, revela la pasión que siente por la arquitectura en general y por la latinoamericana en particular.

Comienza la construcción del Centro de Artes Escénicas Diego Rivera un proyecto de LMN architects

Ubicado en la calle Frida Kahlo, en un nuevo recinto académico, el Centro de Artes Escénicas Diego Rivera está diseñado para ser el corazón cultural del campus del CCSF. El proyecto proporcionará una base central para los departamentos de música y teatro, con tres salas de espectáculos de vanguardia: una sala multiusos con capacidad para 600 personas, un teatro estudio con capacidad para 150 personas y una sala de recitales con capacidad para 100 personas, además de espacios educativos y oficinas administrativas. El vestíbulo abierto y acristalado del edificio exhibirá el mural de la Unidad Panamericana de Diego Rivera, invitando tanto a la comunidad universitaria como al público a disfrutar de esta histórica obra de arte.

La Arquitectura de Groenlandia: Valores Vernáculos, Respuestas Contemporáneas y Adaptación al Entorno

La arquitectura de Groenlandia, moldeada por un entorno ártico extremo y una historia de colonización, representa un tema de creciente relevancia en el contexto geopolítico actual. Groenlandia, el territorio autónomo más grande del mundo dentro del Reino de Dinamarca, se ha convertido en un «botín territorial» codiciado, particularmente por Estados Unidos, que ha expresado intenciones de anexión para asegurar recursos minerales, posiciones estratégicas en el Ártico y contrarrestar la influencia de Rusia y China. El presidente Trump ha reiterado que el control estadounidense es una «necesidad absoluta» para la seguridad nacional de Estados Unidos, reviviendo propuestas de compra o incluso intervención militar. Esta tensión geopolítica subraya la validez del estudio de su arquitectura, no solo como expresión cultural, sino como un activo estratégico que refleja la resiliencia de los groenlandeses ante cambios climáticos y presiones externas.

El Puerto Espacial de Ecuador 2030: ¿Salto al futuro o promesa en el aire?

Ecuador ha vuelto a poner su mirada en las estrellas. Según reportes recientes de Ecuavisa, el país proyecta la construcción de su primer puerto espacial para el año 2030. La noticia no es un rumor; se basa en alianzas estratégicas entre la empresa ecuatoriana Leviathan Space Industries y la estadounidense Blackstar Orbital. Sin embargo, detrás del entusiasmo de los titulares, surge un análisis necesario sobre la realidad económica y técnica de este «hito histórico».

La Silla Búho (Owl Chair)

Como país con acceso limitado a la tierra y a los recursos naturales, Japón ha desarrollado una rica cultura basada en la herencia de la creatividad. Conceptos como el Furoshiki (una tela capaz de envolver cualquier objeto) y el Origami (una hoja de papel que cobra vida al doblarse) son símbolos de cómo alcanzar resultados máximos bajo circunstancias limitadas.