Proyectos

Artboard 1
Artboard 2
Artboard 3
Artboard 4
Artboard 5
Artboard 6
Artboard 7
Artboard 1
Artboard 2
Artboard 3
Artboard 4
Artboard 5
Artboard 6
Artboard 7
Artboard 8
Artboard 9
Artboard 10
Artboard 11
Artboard 12
Artboard 13
logo
previous arrow
next arrow

Atelier CL3: Apartamentos Filipovice

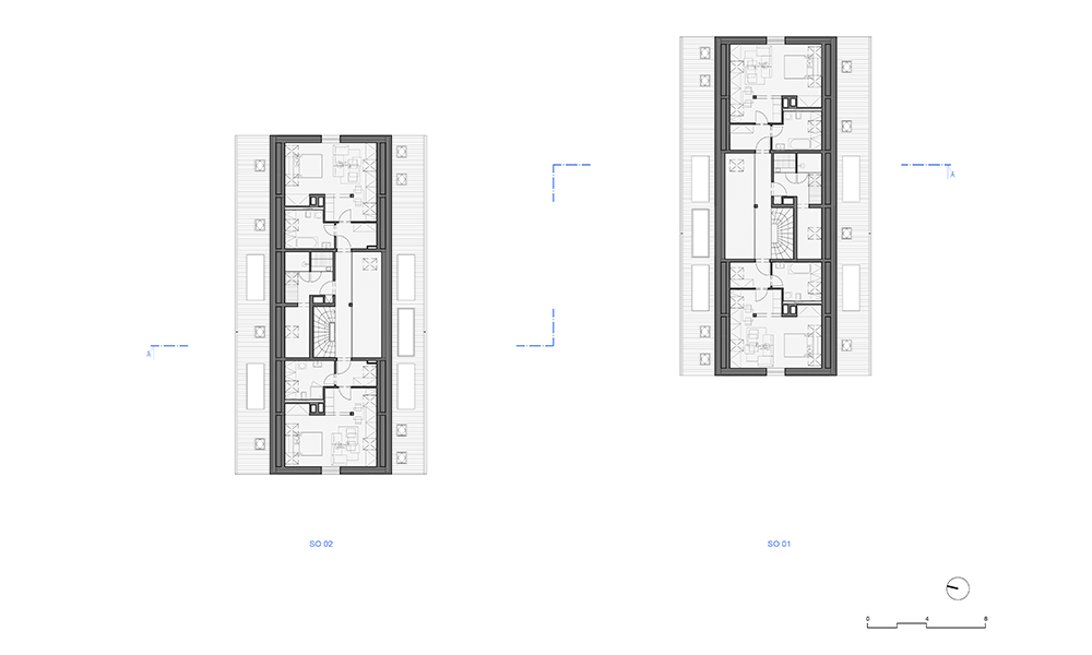
El concepto contemporáneo, casi minimalista y simple de los edificios es una transcripción de estilo libre de la morfología tradicional de la arquitectura original de Jeseniky. La clásica cubierta a dos aguas completa la masa básica sobre los cimientos rectangulares. Ambos edificios están completamente revestidos con un material típico de origen local: tejas de alerce en un diseño natural. Las logias contrastan con el revestimiento de alerce «suave» y sin cepillar de la masa principal de la casa, que se oscurecerá con el tiempo. El brillo cristalino del mosaico de vidrio coloreado, junto con las ventanas estrictamente cuadradas del mismo color del marco, definen el carácter de los edificios. Las partes residenciales están diseñadas como paredes de ladrillo silicocalcáreo con techos monolíticos de hormigón armado, y el techo es una construcción de madera a dos aguas. El edificio se levanta sobre cimientos corridos. El diseño se basa en materiales tradicionales: el revestimiento de madera de tejas de alerce del bosque local, que es una paráfrasis libre de las fachadas de los graneros locales y los gabletes de los edificios residenciales. Las logias de colores contrastan con el revestimiento de color gris natural, lo que agrega un acento colorido y vitalidad a los edificios. El edificio ha sido diseñado para ser lo más autosuficiente posible con respecto al entorno montañoso: la única utilidad suministrada es la energía. La calefacción es a base de bomba de calor de agua subterránea, las áreas comunes están equipadas con recuperación de aire, el agua proviene de un pozo propio con equipo de suministro de agua y las aguas residuales se verterán en una planta de tratamiento de aguas residuales domésticas con absorción de agua limpia al suelo.

 

Materiales

 

albañilería – ladrillos silicocalcáreos + muros de hormigón armadotechos – hormigón armadopiso – revestimiento de llana de poliuretano – teja de alercefachada – teja de alerce + mosaico vítreoconstrucción del techo – cabrios de madera – revocos de yesoventanas – perfiles de maderacalefacción – bomba de calor suelo– agua

 

Productos y Marcas

 

ventana de techo — Velux\www.velux.czfanlight — Kubeso\www.kubeso.czwindow – marco de madera — Matrix\www.windows.matrix-as.cz

Revestimiento de fachada y techo – teja de alerce — Vladimír Hlobil\

www.drevene-sindele.cz

 

Acerca del estudio

 

Atelier CL3 es una empresa de arquitectura y comercial creada dentro de la plataforma de una asociación de arquitectos, un estudio, un laboratorio que va más allá del diseño. Nuestro lema principal es que „La arquitectura para nosotros no es la búsqueda de una imagen bonita o una fábrica rutinaria de sueños. Tenemos alegría y energía. El tiempo de la tarea es un desafío imposible. Trabajamos en equipo respetando las opiniones». La unión de los miembros del equipo, la amplitud de opiniones y habilidades, así como las superposiciones interdisciplinarias en la creación, son la base de nuestro trabajo. Los miembros básicos del equipo son Roman Gale, David Bures y Radek Pasterny, que se complementan con otros colaboradores, ahora son Petra, Kristýna, Adéla y Mirek.

Estudio: CL3
Autor: Roman GaleDavid BurešRadek Pasterný
Sitio web: www.cl3.cz
Medios de comunicación social:
www.facebook.com/cl3arch
dirección del estudio: třída Kpt. Jaroše 1845/26, 602 00 Brno – Černá Pole, República Checa
Coautor: Nicol GaleKateřina Kunzová

Localización del proyecto: Filipovice 534, 79001 Belá pod Pradědem – Filipovice
País del proyecto: 
República checa

año del proyecto: 2016-2018
año de finalización: 2020
Área construida: 299 m² edificio 01299 m² edificio 02
Superficie de suelo: 1132 m² edificio 011110 m² edificio 02
Tamaño de la parcela: 2375 m²
Dimensiones: 3488 m3, edificio 013488 m3, edificio 02
Costo: 2,4 mil. €

Cliente: domoplan
sitio web del cliente: www.domoplan.eu

Fotógrafo: Tomáš Slavík,  www.tomasslavik.cz
Colaborador
Instalaciones técnicas: TPS projekt, www.tpsprojekt.cz

Estática: Huryta, www.huryta.cz

Seguridad contra incendios: Zdeňka Maggio

Iluminación: ATEH lighting

Morgridge Hall inaugura en la UW-Madison: un modelo transformador para la investigación interdisciplinaria, la sostenibilidad y el diseño centrado en el ser humano

Seattle, Washington – 17 de febrero de 2026 – LMN y Kahler Slater anuncian con orgullo la finalización de Morgridge Hall en la Universidad de Wisconsin-Madison. Esta emblemática instalación marca el comienzo de una nueva era para la investigación y la educación interdisciplinarias, al servir como la nueva sede de la Escuela de Ciencias de la Computación, Datos e Información, uniendo por primera vez las disciplinas de la computación y los datos en el campus.

Níall McLaughlin Architects: Proyecto Ganador Concurso Internacional de Diseño del Museo del Bautismo de Jesús en Betania

El Concurso Internacional de Diseño del Museo del Bautismo de Jesús en Betania fue un proceso por invitación de dos etapas para seleccionar un equipo excepcional, multidisciplinario y dirigido por arquitectos, para entregar un diseño conceptual para un nuevo museo en honor al bautismo de Jesucristo en Betania Más Allá del Jordán.

Siete equipos de diseño multidisciplinarios fueron preseleccionados para el concurso y fueron invitados a desarrollar propuestas conceptuales para el nuevo museo.

Paulo Martins Arquitectura & Design: Casa Beira Mar II

Ubicada en el barrio de Beira Mar en Aveiro, donde las calles se curvan, las parcelas se tuercen y la ciudad se expande, una casa pequeña pero profundamente meditada cobra forma. En una parcela irregular y minimalista, el proyecto no intenta corregir la forma del lugar. La acepta. Y a partir de ella, construye.

Hersen Mendes Arquitetura: Renovación de la Embajada Británica en Brasilia

Cuando Hersen Mendes Arquitetura fue invitado a renovar la residencia oficial de la Embajada Británica en Brasil en 2023, la misión era acondicionar las habitaciones para la llegada de la embajadora Stephanie Al-Qaq —la primera mujer en ocupar el cargo en el país— y preparar el espacio para las celebraciones de la coronación del rey Carlos III y la reina consorte Camila en mayo de ese año.

Robert A.M. Stern Architects: Edificio Pezet 195 en San Isidro, Lima, Perú

Pezet 195 es el sexto edificio de apartamentos en el barrio de San Isidro de Lima diseñado por el legendario estudio de arquitectura de Robert A.M. Stern. Consta de una torre gemela de 24 pisos con vistas al Club de Golf de Lima y un edificio residencial más pequeño de 8 pisos con vista al Parque Roosevelt en la parte trasera. Las torres están unidas por un amplio jardín formal central.

Studio Alfa: Brew House

Brew House un proyecto de Studio Alfa, captura la esencia de la arquitectura contemporánea ecuatoriana. Ubicado en Quito, en la Mitad del Mundo, la obra destaca por su audaz materialidad —donde la piedra de mármol habano en gaviones, el ladrillo y el acero se funden en una estructura altamente expresiva— conformando una casa-taller. Al integrar el habitar y con el producir (cerveza artesanal), el proyecto desafía los límites convencionales del habitar, convirtiéndose en un referente de diseño mixto con gestos arquitectónicos poéticos.

Pitta Arquitetura: Residencia JV en Ubatuba, São Paulo

La Residencia JV en Ubatuba, São Paulo, combina un diseño contemporáneo con una integración sensible en la Mata Atlántica. El proyecto, diseñado por Pitta Arquitetura, prioriza el uso de materiales naturales, el confort térmico y una forma de habitar integrada en una vivienda de 260 m².

3ME Arquitectura: Catalejos Urbanos

El Bajío mexicano, un territorio donde no existen registros de grandes asentamientos prehispánicos, nos revela su historia a través de su riqueza natural y sus procesos históricos. La fertilidad de sus tierras junto al Río Lerma permitió el desarrollo agrícola, mientras que la minería en Guanajuato marcó un hito en la historia de la Nueva España, generando un profundo sentido de identidad y cultura.

ZHA diseñará el Distrito Cultural de la Bahía de Qiantang

El Eje Central de Agua de la Bahía de Qiantang da forma a una nueva secuencia de parques paisajísticos, terrazas y jardines a lo largo del Canal Zhedong, en el distrito de Xiaoshan, Hangzhou. Esta intervención redefine las antiguas áreas industriales de la cuenca del canal y las transforma en un corredor verde que se entrelaza con el corazón de la ciudad.