»Este edificio libre de combustibles fósiles llena un vacío muy necesario en el mercado inmobiliario. Austin Maynard Architects consideró lo que significa vivir en una Terrace House, extrajo muchos de esos elementos altamente atractivos y los usó para impulsar este diseño. Esto es un proyecto que invita a la intriga y fomenta la conversación en su misión de contribuir a Brunswick con entusiasmo”.
El Proyecto Local
Terrace House es el resultado de clientes, personal y aliados anteriores de Austin Maynard Architects que arriesgaron su propio dinero para crear viviendas centradas en la comunidad que sean equitativas, éticas, rentables, sólidas y resistentes frente a la creciente crisis climática. Entre nuestros increíbles inversores, que arriesgaron tanto, se encuentran clientes anteriores de Union House, Grant House, Mills: The Toy Management House, Mash House, Sproule House y Walker House. Además, el patriarca de la arquitectura de Melbourne, el profesor emérito Leon Van Schaik, apoyó y ayudó a financiar Terrace House, al igual que los arquitectos Scale Architecture, Phooey Architects y más. Todos ellos campeones de la vivienda ética que han sido increíbles partidarios de Austin Maynard Architects en el pasado y con quienes esperamos compartir futuras aventuras.
“Uno de nosotros es un servidor público, el otro es un maestro de escuela. En nuestro nivel de ingresos, las opciones para la propiedad de la vivienda se limitan a la expansión suburbana estándar con un largo viaje al trabajo (que probablemente requiera un automóvil), o una caja de zapatos del centro de la ciudad que no es adecuada para criar niños pequeños. Ciertamente, nunca podríamos permitirnos una nueva construcción diseñada por un arquitecto, y mucho menos una en Brunswick. Terrace House nos ha dado la tranquilidad de que podemos vivir sin automóviles y sin preocupaciones en un vecindario de 20 minutos, a poca distancia de todas las comodidades que necesitamos, y que podremos criar a nuestros hijos en una comunidad estable de propietarios-ocupantes que como nosotros valora los resultados equitativos, la sostenibilidad ambiental y un gran diseño”.
– Paula Hanasz, Departamento de Medio Ambiente, Tierras, Agua y Planificación, miembro de la Comunidad de Práctica de Sostenibilidad del Sector Público de Victoria y residente de Terrace House.
“Este edificio es el futuro, marcando la pauta de lo que es posible; para ver lo bueno que es vivir un poco más simple y más sostenible, en una comunidad muy unida, en un área donde todo lo que necesitas está a poca distancia. Es un gran lugar para estar y todos son tan cálidos y abiertos e igualmente felices de estar aquí. Es un hogar perfecto.”
– Griff, director de Hermann Studios y residente de Terrace House
El qué
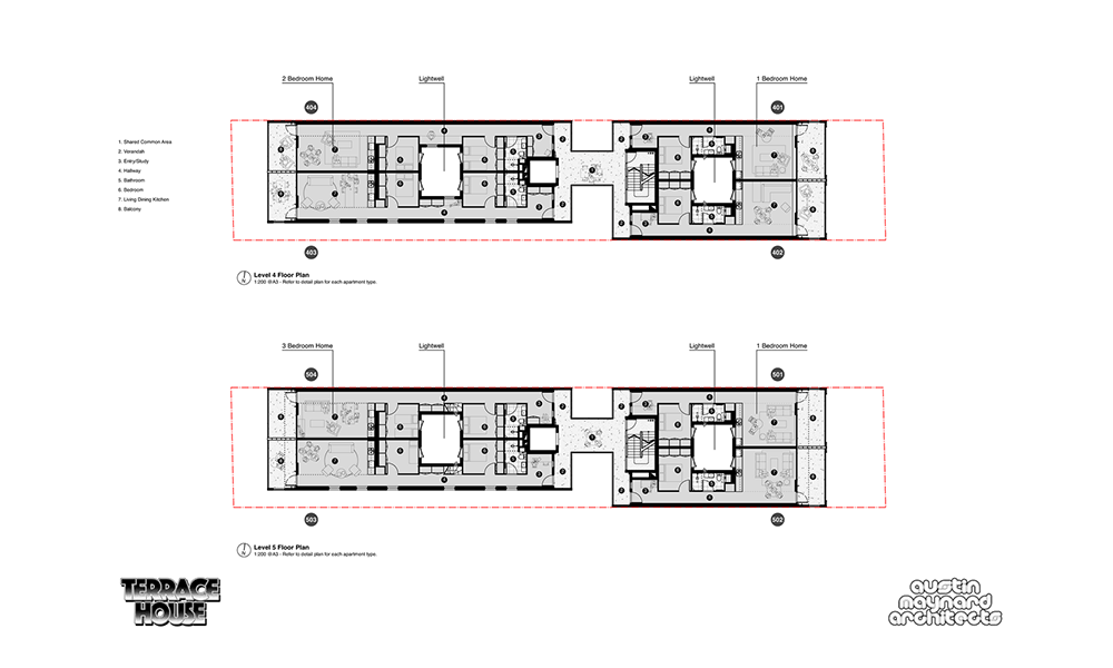
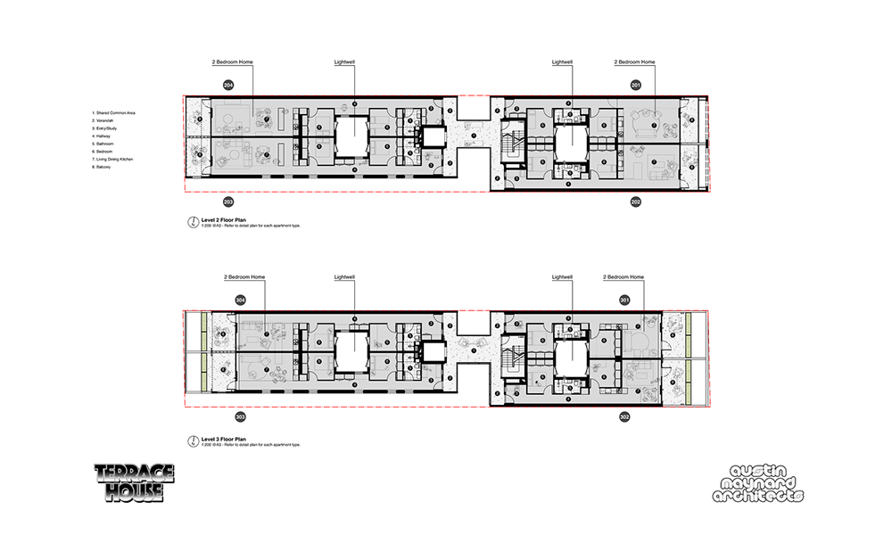
Terrace House es un edificio ético, bellamente diseñado, altamente sostenible y 100 % libre de combustibles fósiles en Melbourne, que comprende veinte residencias (de 2 y 3 dormitorios), con 55 estacionamientos para bicicletas y tres espacios comerciales en la planta baja. El primer proyecto multiresidencial de Austin Maynard Architect como arquitecto y desarrollador, Terrace House adopta un enfoque revolucionario de la vivienda y ofrece apartamentos de calidad que son sostenibles desde el punto de vista ambiental, social y financiero.
Terrace House, es la reinvención de una antigua vida suburbana del centro de la ciudad, donde las filas de cabañas de trabajadores generaron y nutrieron una comunidad cercana. Fiestas callejeras, cuidado de niños compartido, jardines comunales, préstamo y préstamo entre vecinos, conversaciones sobre el tendedero y puertas delanteras abiertas: estos ideales son la base de Terrace House. Estos no son apartamentos, son casas: casas adosadas apiladas de seis pisos de altura.
Ambos arquitectos y desarrolladores
A lo largo de los años, los desarrolladores se han acercado a Austin Maynard Architects en busca de nuestro diseño único, alegre y galardonado. Sin embargo, repetidamente, los desarrolladores no estaban interesados en resolver los problemas fundamentales del clima y la vivienda. Simplemente querían aprovechar la popular marca de Austin Maynard Architect. Entonces, en cambio, nos comprometimos a hacerlo nosotros mismos.