Bajío 307
BAJÍO 307 es un conjunto de 82 departamentos ubicado en la colonia Roma, una zona con alto valor patrimonial.
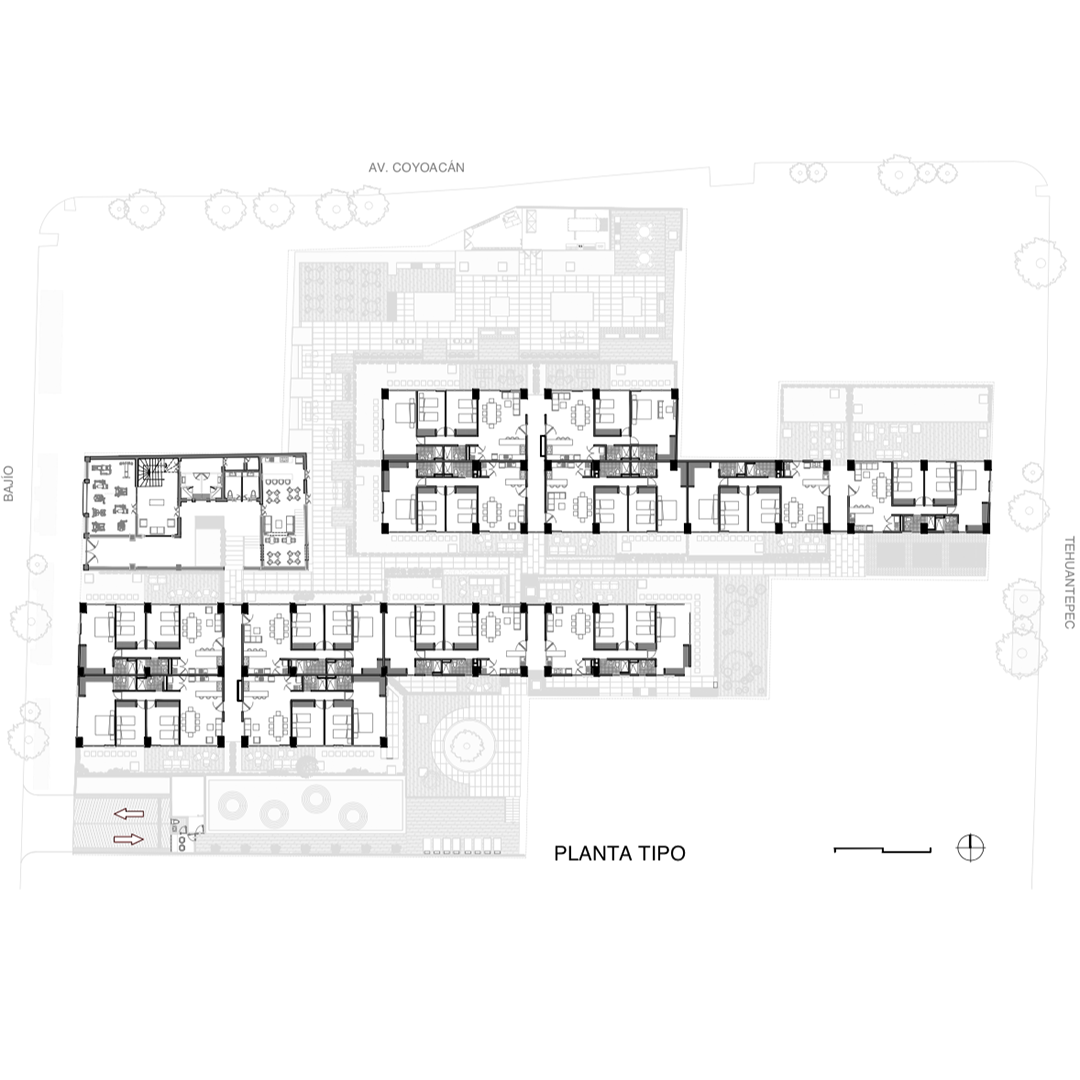
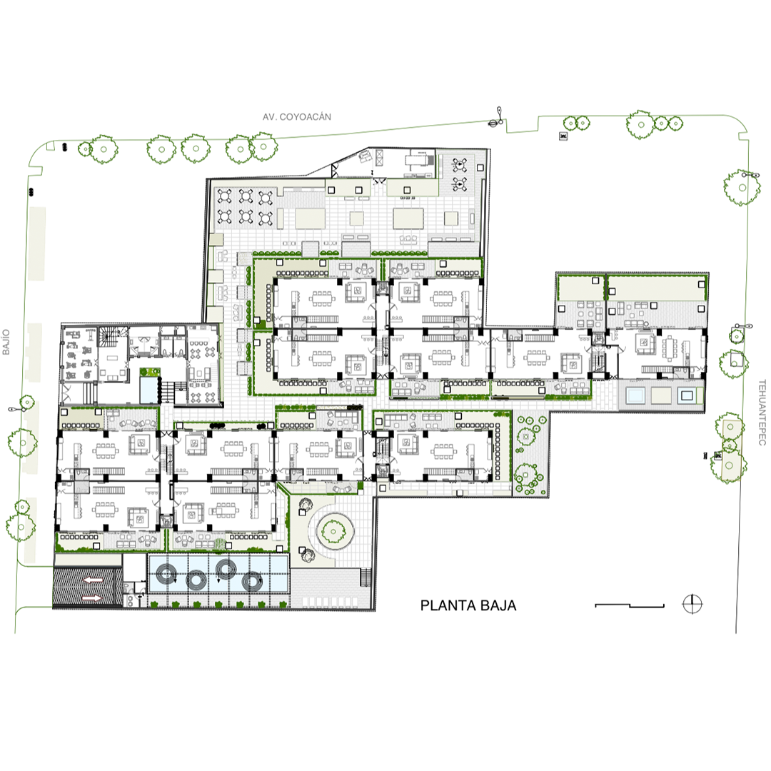
El proyecto se desplanta en un terreno que resultó de la fusión de diferentes predios y cuenta con frentes sobre tres calles: Av. Coyoacán, Tehuantepec y Bajío. El reto principal fue la casa de principios del siglo XX catalogada por el INBA como inmueble de valor artístico que se encuentra en uno de los predios. Se restauró, y se decidió que albergaría el acceso y las áreas comunes. A partir de ella se trazó un eje compositivo longitudinal al centro del terreno sobre el que se ubicaron dos volúmenes de departamentos.
El acceso principal es por la calle Bajío. A partir de éste, un corredor comunica la casa catalogada, dos volúmenes de departamentos, y las circulaciones que llevan a las áreas de esparcimiento común: patios, zona de alberca y jardines. Por otra parte, la circulación vertical al interior de cada volumen consiste en dos núcleos de escaleras y elevadores que comunican con el semisótano de estacionamiento.
Originalmente la casa estaba ocupada por la administración de una escuela por lo que se hicieron diversos cambios para su restauración. Se quitaron divisiones de tablaroca, se removió el recubrimiento de yeso de los muros, se conservó el tabique aparente, se restauraron ventanas de madera y barandales de herrería. También se retiraron los plafones para descubrir el sistema de bóveda catalana del techo y se removieron rellenos en pisos que contribuían a la humedad.
Ahora, en la casa se albergan algunas áreas comunes; en planta baja: el lobby, biblioteca, cafetería, sanitarios y vestidores; en planta alta: el gimnasio, sala de juntas y business center; la azotea se aprovecha como roof garden con piscina, zonas de estar y barras.
En el patio central se conservaron los pisos de pasta originales y se agregó un espejo de agua con un muro verde donde se colocó una obra de Aldo Chaparro. En los espacios abiertos hay también obras murales de Cordelia Gonzalez y Rodrigo Roji. En la planta baja del conjunto, hacia Av. Coyoacán, se dispuso un espacio como estudio-taller para artistas.
Los departamentos, que van de los 98 a los 154 m2, se encuentran distribuidos en dos volúmenes de siete niveles, cada uno con seis departamentos. Los que están ubicados en planta baja y el último nivel tienen doble altura y terraza privada.
Para el despacho era importante generar una huella verde significativa, un microclima en medio de la zona céntrica urbanizada por completo; por esta razón, el proyecto cuenta con jardines en planta baja, roof gardens en pisos elevados y 9,200 m2 de fachadas verdes. El 60% del terreno se destinó a áreas libres (en vez del 20% reglamentario) y se respetaron las áreas permeables. Para los jardines se seleccionaron especies resistentes que se adaptaran a las condiciones de sol y sombra del conjunto y que consumieran poca agua; entre ellas destacan los ciruelos rojos que dan un toque de color a la paleta vegetal. Las fachadas verdes están diseñadas como una serie de vanos y macizos que generan estratégicamente iluminación y ventilación natural al interior de los departamentos; están compuestas por cristal, piedra y especies como rocío, aralia y xanadú. En total se incorporaron 65,000 plantas que generan anualmente el oxígeno requerido por 2,400 personas, filtran 125,350 kg de dióxido de carbono y atrapan hasta 361.05 kg de polvo, entre otros beneficios al medio ambiente. Se respetaron todos los árboles existentes y se añadieron 50 ejemplares nuevos. Para el mantenimiento de toda la vegetación se implementó un sistema de captación pluvial con una capacidad de 104’000 litros con sistemas de filtración y riego programado bajo la asesoría y supervisión de un biólogo especialista. En todo el conjunto se utilizaron muebles y accesorios economizadores de agua.
En cuestión de energía se implementó un sistema inteligente de iluminación con sensores en áreas comunes; así como iluminación LED en todos los departamentos. Las torres están orientadas en sentido oriente-poniente, lo que permite la mayor captación solar en todas las viviendas sin incrementar el calor al interior de los departamentos. El sistema Lutron, programado para responder a la salida y puesta del sol, representa una reducción considerable en el consumo de energía. Y cada año se evalúan los parámetros para optimizar los sistemas automáticos.
Las tecnologías que hacen al conjunto autosustentable (agua tratada, reutilización de agua pluvial, orientación, sistemas ahoradores de energía) disminuyen la presión que ejercería en la zona en cuanto a dotación de recursos hídricos y de energía.
BAJÍO 307 simboliza una nueva forma de edificar en la Ciudad de México. Representa la posibilidad de mejorar el medio ambiente y la ciudad a través de proyectos que integren con generosidad espacios verdes y pedazos de historia. Genera entre la densa urbanización un hito de preservación patrimonial y un espacio verde, un pulmón, para regalar a la ciudad.
Arquitectura: BRAG Arquitectos
Desarrollador: GDC Desarrollos
Dirección del proyecto: Santiago Morales Broc y Cristian Aguilar Gutiérrez
Diseño: Hugo Sánchez, Alejandro Rodríguez, Nayeli Ramos
Paisaje: Kees Van Rooij / KVR Arquitectura de Paisaje
Interiorismo: PIÙ design
Restauración: sackbé
Fotografías: Onnis Luque, Zaickz Moz, Iker Haro (interiores)
Ubicación: Colonia Roma, Ciudad de México
Año: 2021
Superficie: 4,000 m2 de terreno, 13’500 m2 de construcción
Sitio web: https://brag.mx/
Redes sociales: Instagram y Facebook – @brag.arquitectos