El CEIBO es una vivienda familiar, vacacional y de descanso, con miras a convertirse en la residencia de retiro de la pareja de propietarios. Se implanta en un bioclima seco con desbalances hídricos, vientos fuertes y limitadas especies vegetales e imita, mediante la desnudez de su arquitectura, a los árboles deciduos del lugar.
El CEIBO se construyó artesanalmente, inspirado en las texturas cálidas, estriadas y rugosas que evocan la cultura e identidad de Montecristi y que se encuentran en la producción manufacturera de tejidos naturales, en los materiales de la arquitectura tradicional (caña, madera, ladrillo), y en la superposición de ramas y troncos de los bosques deciduos del lugar. La vivienda vernácula manabita guía las estrategias espaciales, de diseño pasivo y confort térmico con bajo impacto ambiental.
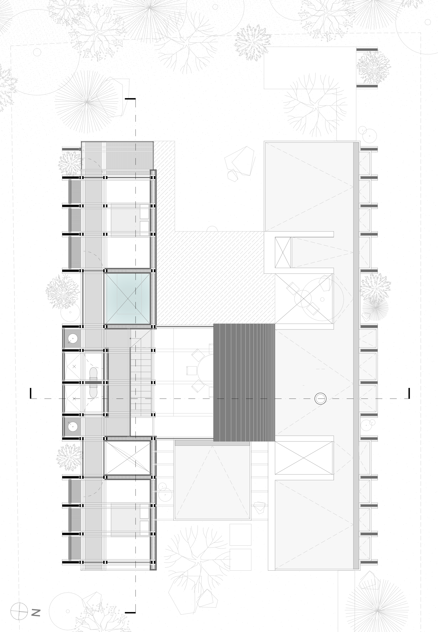
La casa de madera está compuesta por tres zonas con programas específicos. Hacia el norte y en un nivel se asienta el bloque matrimonial, pensado para los usuarios sedentarios del proyecto: la pareja que hará de esta vivienda su hogar de retiro. El bloque matrimonial contiene los espacios necesarios para que la pareja desarrolle sus actividades diarias, incluyendo una cocina-fogón que rescata la principal técnica de cocción de Manabí. Hacia el sur y en dos niveles se asienta el bloque de visitas, pensado para los usuarios flotantes del proyecto: los hijos, la familia y amigos que visiten la vivienda por temporadas. El bloque de visitas contiene tres habitaciones, un núcleo de servicios higiénicos y una zona de hidromasaje y hamacas. Entre ambos bloques se conforma la zona social, evidenciada con una cubierta curva estructurada con madera laminada de pino que, a través de su forma orgánica y ascendente, evoca el encuentro entre ambos usuarios: sedentarios y nómadas. Esta zona contiene los espacios de encuentro: sala, comedor y un porche que abraza y encuadra al sol del atardecer, al campo de golf y al enorme y brumoso cerro Montecristi, que asemeja a un viejo guardián del territorio.
Las pasarelas del CEIBO, elemento jerárquico rescatado de la tipología de vivienda manabita, organizan longitudinalmente el funcionamiento de los bloques de sedentarios y nómadas mediante la disposición de los espacios servidores hacia los linderos (fachadas norte y sur) y de los espacios servidos hacia el interior de la vivienda. En el recorrido de estas pasarelas se disponen vacíos que funcionan como patios que, además de dar lugar a espacios de recreación y de permitir una mayor relación visual con el entorno natural desde el recorrido interno, ayudan a enfriar el aire junto a la vivienda. En sentido transversal al proyecto, una pasarela conecta a los bloques laterales y los vincula a los espacios centrales de encuentro y comunión, que flotan sobre una cama orgánica que replica la materialidad de los exteriores del CEIBO.
El núcleo estructural del CEIBO se define también en torno a las pasarelas: en ambos lados de la circulación, un doble traslape de columna y viga de colorado recibe a los entrepisos y cubiertas y da lugar a las paredes; elementos conformados por un compuesto base de OSB – aislante de fibra reciclada de coco – OSB estructurado con bastidores de pino inmunizado. Para las paredes, bajo el revestimiento exterior, se instalan membranas que actúan como barreras de vapor transpirables evitando condensaciones intersticiales. La estructura liviana y flexible de colorado responde positivamente a la alta amenaza de sismo de la zona, y se asienta sobre pilotes de hormigón armado que la elevan y la hacen flotar para permitir el paso de una corriente de aire que enfríe los espacios internos y para reducir el riesgo de inundación y de erosión de suelo.
Los espacios servidores, que colindan con lotes vecinos al norte y sur del proyecto, constituyen un cerramiento hacia el interior de la vivienda. Sus fachadas son cerradas para brindar privacidad y están revestidas por lamas de pino, quemadas para protegerlas de los agentes bióticos y abióticos; los tabiques estructurales de ladrillo dispuestos transversalmente junto a cada eje de columnas rigidizan la estructura y dividen los distintos usos de almacenamiento; y las ventanas superiores en fachada permiten la salida del aire caliente empujado por una ventilación cruzada pasiva contribuyendo al confort térmico interior.
—-
Nombre de la Casa: CEIBO
Ubicación: Montecristi Golf Club y Villas, Montecristi, Manabí – Ecuador
Autor: estudioYURA
Arquitectos: Alejandra Duque y Juan José Chang
Colaboración: Giannina Rhor
Asesoría Estructural: Ing. Mathieu Lamour e Ing. Patricio Cevallos
Construcción: estudioYURA
Residencia de Obra: José Argüello
Carpintería Estructural: Las Manos Sucias
Maestro Mayor: Ángel Quishpe
Obreros Principales: Heberth Delgado, Juan Franco y Jaime Merchán
Área Total de Construcción: 330m2
Área de Terreno: 557m2
Año de Construcción: 2020
Fotografía: Bicubik
—-
Toda la info en Tram 164: https://tramaediciones.publica.la/library/publication/trama-164