Este proyecto es la primera implementación de “tierra apisonada” en Costa Rica.
Utilizamos completamente la tierra arcillosa de las excavaciones para la construcción de todos los muros de carga perimetrales.
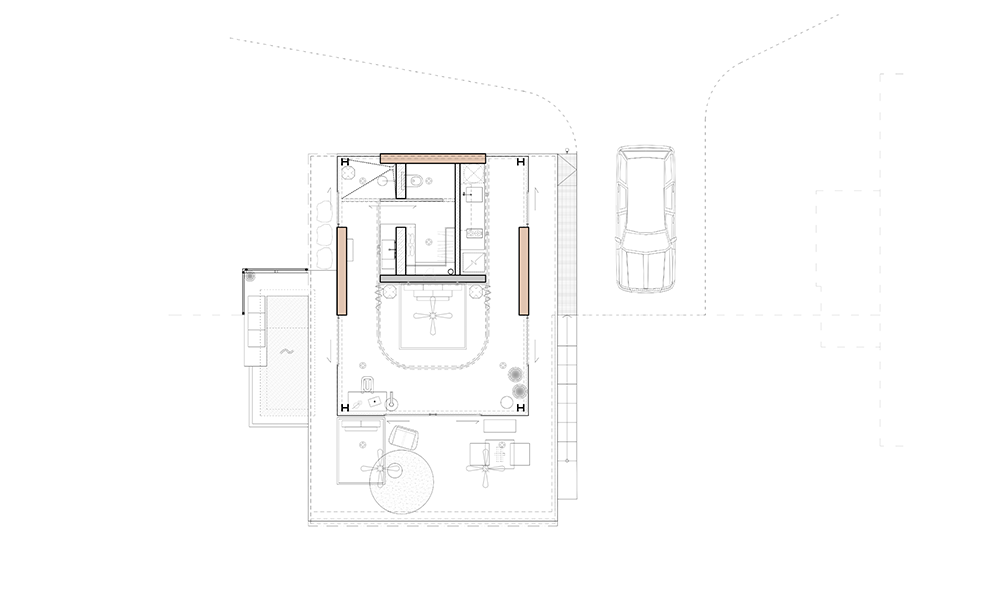
Cerca del pueblo de Uvita, en un terreno de 11.000 metros cuadrados a una altura de 300 m sobre el mar, diseñé dos pequeñas villas en una colina cubierta de selva. Ambas villas, que en parte levitan sobre la empinada ladera sur, están diseñadas para alquileres recreativos a corto plazo. La superficie construida de cada uno de ellos es de 90 m2.
Mi intención era diseñar casas sostenibles con interiores biofílicos, que estarían sofisticadamente pensados y al mismo tiempo su forma sería fuertemente minimalista y simple. Ningún elemento adicional innecesario, pero tampoco nada que perder.
La arquitectura de las villas contrasta deliberadamente con sus líneas finas y afiladas con la exuberante vegetación tropical, pero los materiales y colores elegidos coinciden perfectamente con el entorno.
Ambas villas son arquitectónicamente iguales. Los materiales, la disposición en planta o la orientación hacia los puntos cardinales también son idénticos. Sin embargo, se diferencia en el interior, sobre todo por su concepto cromático, que en parte se refleja también en los exteriores.
El diseño arquitectónico se basa en el genius loci – en la orientación de la parcela de construcción hacia la vista infinita del Océano Pacífico y la morfología del terreno. El concepto de color de los interiores responde a las energías que se percibían en la ubicación de las villas antes de su construcción.
Aunque las villas están separadas por solo 12 m, cada una de ellas tiene vibraciones claramente diferentes que reflejé en el diseño interior.
Jaspis Villa (jaspis = jaspe, villa brillante) es un reflejo de la energía yin. Está conectado con el océano y el cielo, no solo visualmente, sino también con sus vibraciones. Con un concepto de color en tonos arena, respondo a esta interconexión.
Nefrit Villa (nefrit = jade, villa oscura) es un reflejo de la energía yang. En la villa Nefrit puedes sentir la conexión con la tierra y la selva. Aquí, también, el concepto de color elegido es una reacción a estas energías y el color rojo terracota del piso de concreto transmite la sombra del suelo local al interior de la casa.
Al llegar, ambas villas parecen muy discretas, humildes. A los lados están revestidos de plantas tropicales recién plantadas. Pero tan pronto como pasa por la villa, más hacia las terrazas levitantes, después de unos pocos pasos, se abre la vista del océano y se encuentra en el generoso espacio del dormitorio principal con terrazas adyacentes y piscina infinita.
Como si de repente te encontraras en una villa diferente a la que ingresaste.
Puse un énfasis extremo en toda la construcción: los detalles arquitectónicos y sus limitaciones mutuas.
Los materiales visuales en bruto de las paredes de tierra apisonada y el hormigón se complementan con las vigas en H de acero estructural, que soportan una losa de techo monolítica de hormigón. Las vigas y el anillo de la casa son visibles solo en la cara superior del techo, que está revestido con un par de perfiles en “U” de acero. También cumplen la función del ático del techo.
Todas las fachadas orientadas a vistas infinitas del océano están diseñadas con vidrio sin marco. Los perfiles de las partes deslizantes y macizas de las fachadas de vidrio están empotrados en las ranuras de la losa de techo de hormigón. De esta forma también se aplicó la instalación de los rieles de iluminación interior y el riel de conexión para la mosquitera y las cortinas alrededor de la cama.
El forjado de hormigón se cubre con una solera de cemento estructurado antideslizante, diferente en cada villa. Las paredes interiores restantes, incluidos los muebles sólidos de hormigón diseñados a medida, también están en la superficie de soleras de cemento, pero aquí en un acabado mate liso.
Elegí los materiales lo más duraderos posible teniendo en cuenta el clima costarricense y la alta humedad.
Para realizar los muros de arcilla «Tierra Apisonada» invité a un especialista experimentado de Brasil, propietario de la empresa Terra Compacta, porque en Costa Rica nadie tenía experiencia con este método de construcción. Daniel Mantovani de Terra Compact capacitó a varios artesanos locales y juntos pueden atribuirse su primer lugar para realizar arquitectura de tierra apisonada en Costa Rica.