Proyectos

7
4
2
1
5
6
8
default
9
10
previous arrow
next arrow

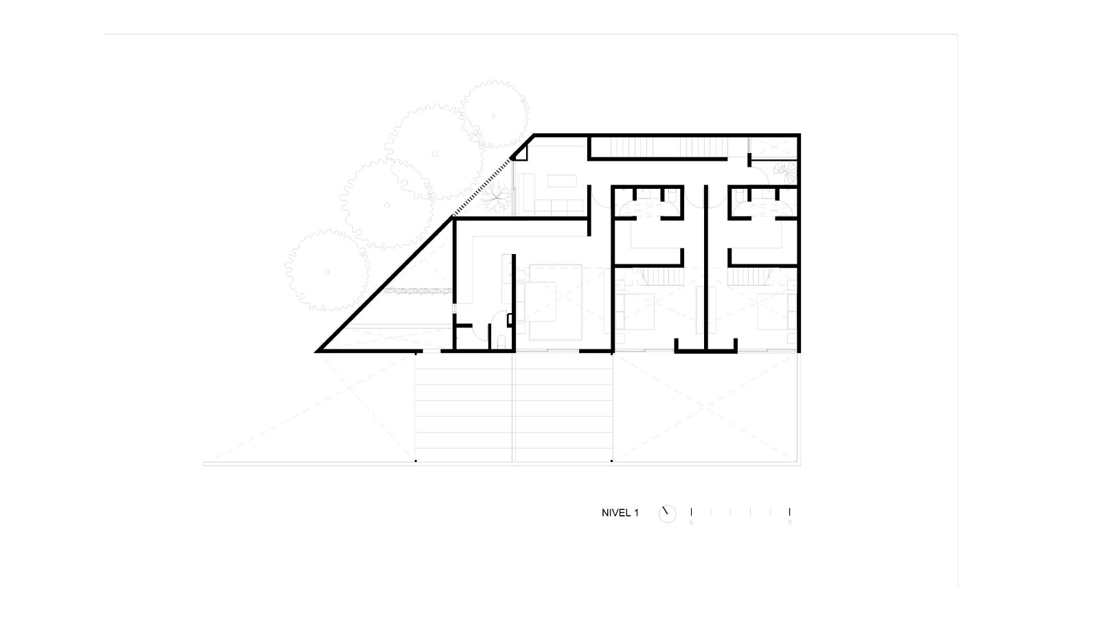
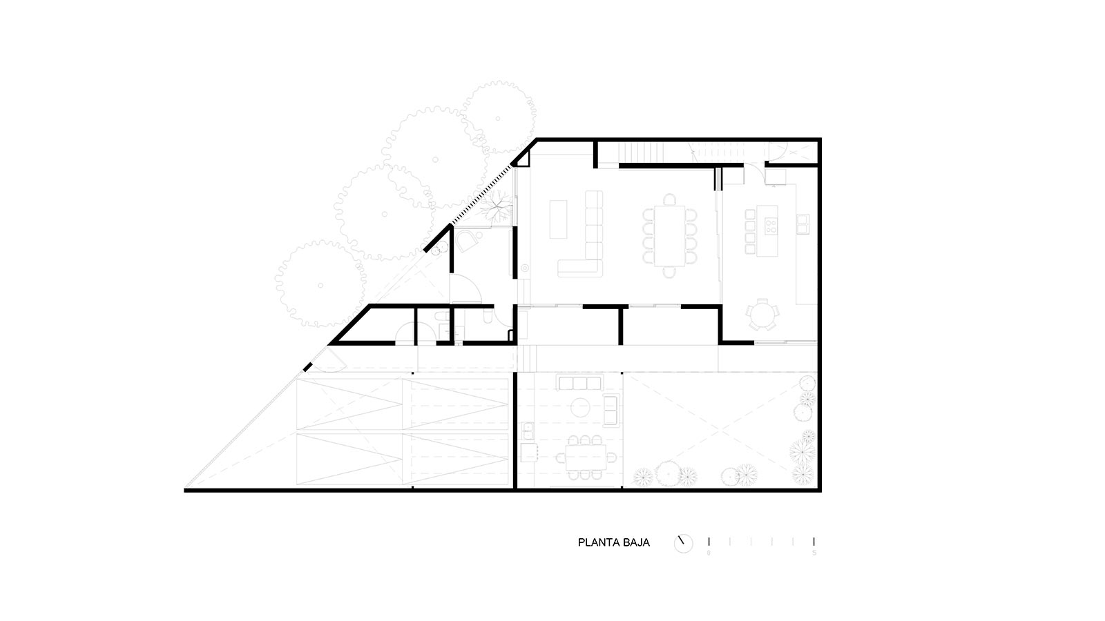
Graus: Casa Auseva

Ubicada en la zona sur de la Ciudad de México, esta residencia parte de una premisa clara: depurar lo innecesario para revelar una arquitectura de orden, luz y contemplación. La propuesta responde a una búsqueda rigurosa de pureza geométrica y honestidad material, donde cada decisión proyectual se articula desde la simplicidad formal y la sensibilidad espacial.


Lejos de imponerse al terreno, la casa se asienta en el centro del predio, permitiendo que los espacios exteriores funcionen como transiciones vivas entre los distintos núcleos habitables. Esta disposición refuerza un equilibrio entre autonomía funcional e integración paisajística, generando un continuo entre interior y exterior que amplía la experiencia doméstica.


Uno de los ejes conceptuales del proyecto es la relación cuidadosamente modulada con el cielo. Cada ambiente establece una intensidad específica de apertura hacia lo celeste: franca en las zonas sociales, más contenida en los espacios íntimos, siempre mediada por la luz natural como herramienta compositiva y atmosférica. Esta lectura se traduce en gestos precisos, como el acceso principal, concebido como un vestíbulo a cielo abierto que enmarca la bóveda celeste y convierte la llegada en un ritual determinado por la hora, el clima y la estación.


El sistema de escaleras principales se plantea como una secuencia dinámica, donde la luz incide de forma cambiante sobre los planos arquitectónicos, provocando una percepción activa del recorrido. En el remate visual, una escultura se posiciona estratégicamente para dialogar con el movimiento del usuario y subrayar la dimensión sensorial del ascenso.


En las habitaciones secundarias, techos inclinados y dobles alturas enriquecen la volumetría interior, mientras tapancos suspendidos abren posibilidades lúdicas y funcionales. La recámara principal, por su parte, se eleva con un gesto similar: un techo a dos aguas enmarca el cielo desde una ventana alta, amplificando la sensación de apertura y reforzando la conexión íntima con el entorno natural.

La elección de materiales —contenida, duradera, esencial— subraya la voluntad de atemporalidad y sobriedad. La claridad en la organización espacial y la relación constante con la luz natural definen una arquitectura que prescinde del ornamento y privilegia lo fundamental: habitar el tiempo, el espacio y el paisaje.


Créditos
Nombre: CASA AUSEVA
Autor: Graus
Diseño arquitectónico: Antonio Rivas, Jorge García, Jesús Villedas, Diego Valencia, Sebastián Castillo, Daniel Rivas
Ingenierías: Luis Juárez, Daniel Cueva, Héctor Elizarrarás
Superficie construida: 680 m²
Lugar: Ciudad de México
Fecha de construcción: 2025
Fotografía: Jaime Navarro
Correo: media@graus.cc,
Website: https://graus.cc
Instagram: https://www.instagram.com/graus_arquitectura/

Morgridge Hall inaugura en la UW-Madison: un modelo transformador para la investigación interdisciplinaria, la sostenibilidad y el diseño centrado en el ser humano

Seattle, Washington – 17 de febrero de 2026 – LMN y Kahler Slater anuncian con orgullo la finalización de Morgridge Hall en la Universidad de Wisconsin-Madison. Esta emblemática instalación marca el comienzo de una nueva era para la investigación y la educación interdisciplinarias, al servir como la nueva sede de la Escuela de Ciencias de la Computación, Datos e Información, uniendo por primera vez las disciplinas de la computación y los datos en el campus.

Níall McLaughlin Architects: Proyecto Ganador Concurso Internacional de Diseño del Museo del Bautismo de Jesús en Betania

El Concurso Internacional de Diseño del Museo del Bautismo de Jesús en Betania fue un proceso por invitación de dos etapas para seleccionar un equipo excepcional, multidisciplinario y dirigido por arquitectos, para entregar un diseño conceptual para un nuevo museo en honor al bautismo de Jesucristo en Betania Más Allá del Jordán.

Siete equipos de diseño multidisciplinarios fueron preseleccionados para el concurso y fueron invitados a desarrollar propuestas conceptuales para el nuevo museo.

Paulo Martins Arquitectura & Design: Casa Beira Mar II

Ubicada en el barrio de Beira Mar en Aveiro, donde las calles se curvan, las parcelas se tuercen y la ciudad se expande, una casa pequeña pero profundamente meditada cobra forma. En una parcela irregular y minimalista, el proyecto no intenta corregir la forma del lugar. La acepta. Y a partir de ella, construye.

Hersen Mendes Arquitetura: Renovación de la Embajada Británica en Brasilia

Cuando Hersen Mendes Arquitetura fue invitado a renovar la residencia oficial de la Embajada Británica en Brasil en 2023, la misión era acondicionar las habitaciones para la llegada de la embajadora Stephanie Al-Qaq —la primera mujer en ocupar el cargo en el país— y preparar el espacio para las celebraciones de la coronación del rey Carlos III y la reina consorte Camila en mayo de ese año.

Robert A.M. Stern Architects: Edificio Pezet 195 en San Isidro, Lima, Perú

Pezet 195 es el sexto edificio de apartamentos en el barrio de San Isidro de Lima diseñado por el legendario estudio de arquitectura de Robert A.M. Stern. Consta de una torre gemela de 24 pisos con vistas al Club de Golf de Lima y un edificio residencial más pequeño de 8 pisos con vista al Parque Roosevelt en la parte trasera. Las torres están unidas por un amplio jardín formal central.

Studio Alfa: Brew House

Brew House un proyecto de Studio Alfa, captura la esencia de la arquitectura contemporánea ecuatoriana. Ubicado en Quito, en la Mitad del Mundo, la obra destaca por su audaz materialidad —donde la piedra de mármol habano en gaviones, el ladrillo y el acero se funden en una estructura altamente expresiva— conformando una casa-taller. Al integrar el habitar y con el producir (cerveza artesanal), el proyecto desafía los límites convencionales del habitar, convirtiéndose en un referente de diseño mixto con gestos arquitectónicos poéticos.

Pitta Arquitetura: Residencia JV en Ubatuba, São Paulo

La Residencia JV en Ubatuba, São Paulo, combina un diseño contemporáneo con una integración sensible en la Mata Atlántica. El proyecto, diseñado por Pitta Arquitetura, prioriza el uso de materiales naturales, el confort térmico y una forma de habitar integrada en una vivienda de 260 m².

3ME Arquitectura: Catalejos Urbanos

El Bajío mexicano, un territorio donde no existen registros de grandes asentamientos prehispánicos, nos revela su historia a través de su riqueza natural y sus procesos históricos. La fertilidad de sus tierras junto al Río Lerma permitió el desarrollo agrícola, mientras que la minería en Guanajuato marcó un hito en la historia de la Nueva España, generando un profundo sentido de identidad y cultura.

ZHA diseñará el Distrito Cultural de la Bahía de Qiantang

El Eje Central de Agua de la Bahía de Qiantang da forma a una nueva secuencia de parques paisajísticos, terrazas y jardines a lo largo del Canal Zhedong, en el distrito de Xiaoshan, Hangzhou. Esta intervención redefine las antiguas áreas industriales de la cuenca del canal y las transforma en un corredor verde que se entrelaza con el corazón de la ciudad.