Proyectos

Artboard 1
Artboard 2
Artboard 3
Artboard 4
Artboard 5
Artboard 6
Artboard 7
Artboard 10
Artboard 11
Artboard 8
Artboard 9
previous arrow
next arrow

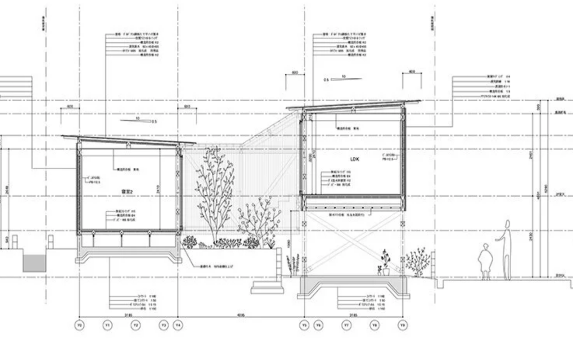
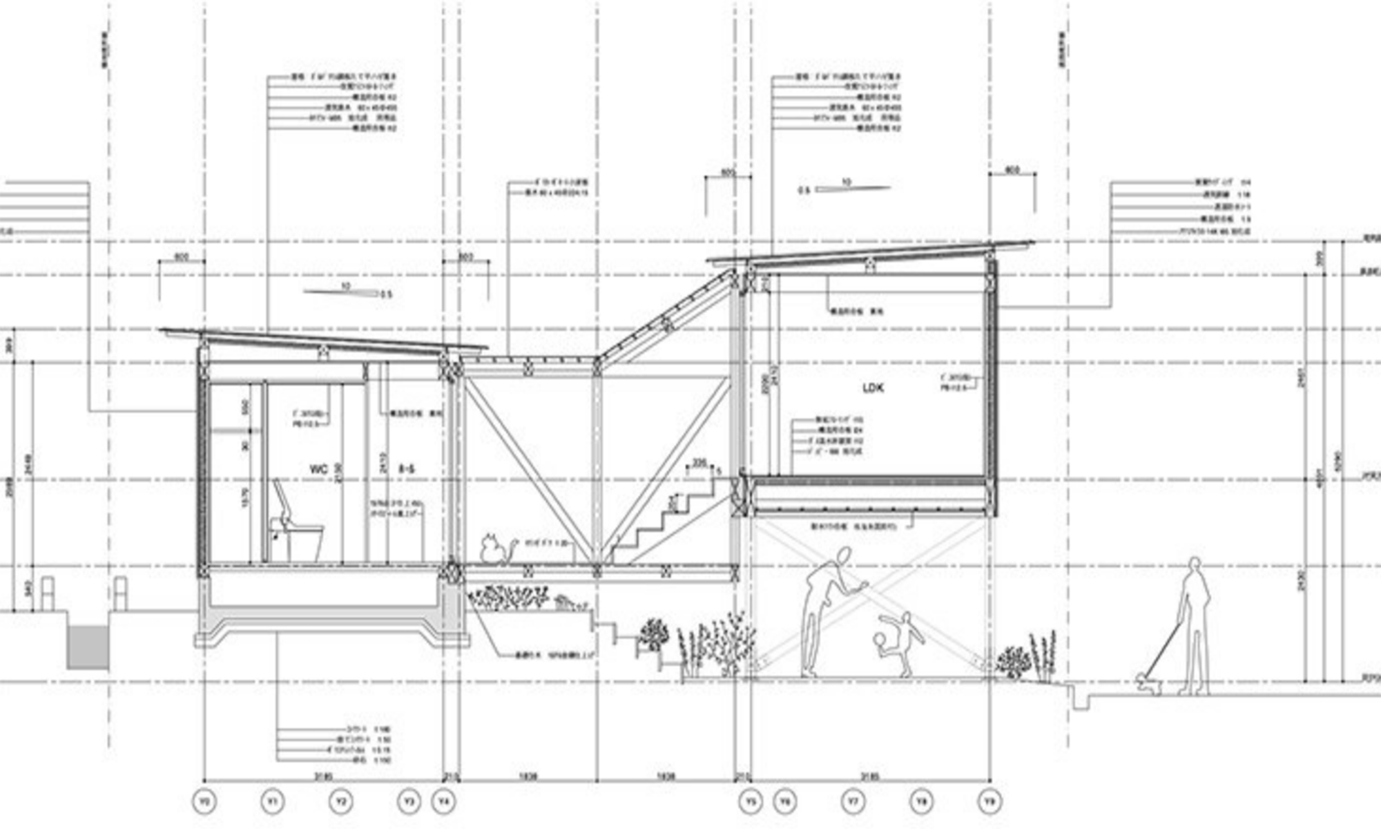
KKAA YTAA: Casa sobre pilotes

El estudio de arquitectura KKAA YTAA, con sede en Japón, eleva un bloque de la Casa sobre una estructura de madera ligera. Es la forma elegida para sortear las condiciones de un terreno en pendiente, el cual está sujeto a drenaje de agua. Elevar el bloque un metro del suelo sirve para reducir los costos de construcción y evitar daños por humedad causados ​​por el agua subterránea. Esta diferencia de altura permite aún más que la luz y el viento escapen por debajo del piso flotante, mientras que se comparten destellos del jardín secreto con el vecindario.

 

El equipo de KKAA YTAA escribe: ‘Se instalarán dos puentes en el margen después de la construcción. Simplemente encerrando la circunferencia exterior, pretendíamos que fuera tanto exterior como interior. Al abrir y cerrar las paredes, estos dos edificios se conectan como varios lugares, como un espacio externo donde el cielo y el viento pueden escapar, un espacio interno como un pasaje y un espacio semi-exterior como una terraza que conecta con la naturaleza y el medio ambiente. plataforma. En la vida cotidiana, el límite con el margen se desdibujará y, finalmente, la vida de la familia comenzará a conectarse con la ciudad a través de este margen.

 

«Espero que al insertar un margen entre estos dos edificios, la vida y la ciudad se conecten indirectamente, y esta será una oportunidad para aumentar el paisaje abierto en esta tranquila zona residencial».

 

Proyecto:  Casa en Gakuenmae

Arquitectura: KKAA YTAA  | @kaa_ytaa

Ubicación:  Ciudad de Nara, Prefectura de Nara, Japón

Arquitectos principales: Kei Kitano YTAA / Takanobu Yagi

Diseño estructural: Ukyo Architectural Structure Office / Ukyo Hirota

Paisajismo: Botanical Office COCA-Z / Tatsuya Furuka

Construcción: Ikemasa

Estructura: método tradicional de construcción en madera

Área del sitio: 160,83 m2

Área de construcción: 79,22 m2

Piso total área: 91.02m2

Finalización: octubre de 2020

Fotografía: © Norihito Yamauchi Photo Office /  Norihito Yamauchi



Texto e imágenes vía: www.kkaa-ytaa.com

Morgridge Hall inaugura en la UW-Madison: un modelo transformador para la investigación interdisciplinaria, la sostenibilidad y el diseño centrado en el ser humano

Seattle, Washington – 17 de febrero de 2026 – LMN y Kahler Slater anuncian con orgullo la finalización de Morgridge Hall en la Universidad de Wisconsin-Madison. Esta emblemática instalación marca el comienzo de una nueva era para la investigación y la educación interdisciplinarias, al servir como la nueva sede de la Escuela de Ciencias de la Computación, Datos e Información, uniendo por primera vez las disciplinas de la computación y los datos en el campus.

Níall McLaughlin Architects: Proyecto Ganador Concurso Internacional de Diseño del Museo del Bautismo de Jesús en Betania

El Concurso Internacional de Diseño del Museo del Bautismo de Jesús en Betania fue un proceso por invitación de dos etapas para seleccionar un equipo excepcional, multidisciplinario y dirigido por arquitectos, para entregar un diseño conceptual para un nuevo museo en honor al bautismo de Jesucristo en Betania Más Allá del Jordán.

Siete equipos de diseño multidisciplinarios fueron preseleccionados para el concurso y fueron invitados a desarrollar propuestas conceptuales para el nuevo museo.

Paulo Martins Arquitectura & Design: Casa Beira Mar II

Ubicada en el barrio de Beira Mar en Aveiro, donde las calles se curvan, las parcelas se tuercen y la ciudad se expande, una casa pequeña pero profundamente meditada cobra forma. En una parcela irregular y minimalista, el proyecto no intenta corregir la forma del lugar. La acepta. Y a partir de ella, construye.

Hersen Mendes Arquitetura: Renovación de la Embajada Británica en Brasilia

Cuando Hersen Mendes Arquitetura fue invitado a renovar la residencia oficial de la Embajada Británica en Brasil en 2023, la misión era acondicionar las habitaciones para la llegada de la embajadora Stephanie Al-Qaq —la primera mujer en ocupar el cargo en el país— y preparar el espacio para las celebraciones de la coronación del rey Carlos III y la reina consorte Camila en mayo de ese año.

Robert A.M. Stern Architects: Edificio Pezet 195 en San Isidro, Lima, Perú

Pezet 195 es el sexto edificio de apartamentos en el barrio de San Isidro de Lima diseñado por el legendario estudio de arquitectura de Robert A.M. Stern. Consta de una torre gemela de 24 pisos con vistas al Club de Golf de Lima y un edificio residencial más pequeño de 8 pisos con vista al Parque Roosevelt en la parte trasera. Las torres están unidas por un amplio jardín formal central.

Studio Alfa: Brew House

Brew House un proyecto de Studio Alfa, captura la esencia de la arquitectura contemporánea ecuatoriana. Ubicado en Quito, en la Mitad del Mundo, la obra destaca por su audaz materialidad —donde la piedra de mármol habano en gaviones, el ladrillo y el acero se funden en una estructura altamente expresiva— conformando una casa-taller. Al integrar el habitar y con el producir (cerveza artesanal), el proyecto desafía los límites convencionales del habitar, convirtiéndose en un referente de diseño mixto con gestos arquitectónicos poéticos.

Pitta Arquitetura: Residencia JV en Ubatuba, São Paulo

La Residencia JV en Ubatuba, São Paulo, combina un diseño contemporáneo con una integración sensible en la Mata Atlántica. El proyecto, diseñado por Pitta Arquitetura, prioriza el uso de materiales naturales, el confort térmico y una forma de habitar integrada en una vivienda de 260 m².

3ME Arquitectura: Catalejos Urbanos

El Bajío mexicano, un territorio donde no existen registros de grandes asentamientos prehispánicos, nos revela su historia a través de su riqueza natural y sus procesos históricos. La fertilidad de sus tierras junto al Río Lerma permitió el desarrollo agrícola, mientras que la minería en Guanajuato marcó un hito en la historia de la Nueva España, generando un profundo sentido de identidad y cultura.

ZHA diseñará el Distrito Cultural de la Bahía de Qiantang

El Eje Central de Agua de la Bahía de Qiantang da forma a una nueva secuencia de parques paisajísticos, terrazas y jardines a lo largo del Canal Zhedong, en el distrito de Xiaoshan, Hangzhou. Esta intervención redefine las antiguas áreas industriales de la cuenca del canal y las transforma en un corredor verde que se entrelaza con el corazón de la ciudad.