La cueva de la mini bestia
Por: Marie Combette, Daniel Moreno Flores, Arqs.
Ubicación: Domingo de Brieva, Rumipamba, Quito, Ecuador
Oficina de Arquitectura: LA CABINA DE LA CURIOSIDAD: Marie Combette + Daniel Moreno Flores
Colaboradores: Paulina Flores Burbano
Ingeniería: Patricio Cevallos Salas
Construcción: Miguel Ramos y José Monrroy
Año finalización construcción: 2019
Superficie construida: 49,26 m2
Ilustración: Marie Combette
Fotografía: JAG Studio, Marie Combette, Pablo Betancourt
Arquitectura accesible y necesaria
Tantos lugares desaprovechados en nuestras ciudades, rincones sin sentido o espacios subutilizados que van quedando en el olvido. Como seres urbanos creemos que las ciudades son grandes escenarios que deben ser reconfiguradas para fomentar la calidad de vida y el aprovechamiento de los recursos inmediatos, promoviendo integración en las infraestructuras existentes. Este proyecto nos ratifica la idea que la arquitectura debe ser accesible para todos. ¡Todos los lugares son transformables!! una bodega, un espacio en abandono, un cuarto huérfano o espacios que ni nos imaginábamos que existían.
Las personas que están en desarrollo sufren de carencia espacial, no disponen de espacios propios. Por el contrario, muchas veces los adultos en su recorrer poseen más espacio del necesario. En un acto de generosidad entre las generaciones, se hacen pequeñas donaciones espaciales, estas se extrapolan a todas las esferas de la sociedad y contribuyen al progreso de los individuos. A estos fragmentos ambientales se les inyecta ópticas de optimización, maximización, para poder acceder a la vivienda propia.
Se reflexiona el hábitat desde las funciones elementales, básicas. Como grandes pretextos para provocar el bienestar personal. Mediante tecnología sencilla se amplifica y se repotencializan los espacios.
Meter mano en la construcción es una oportunidad para generar pertenencia y apropiación, es revelador, uno se transforma de un residente lejano a un habitante de su propio lugar. Pensar sobre tu espacio es como un nuevo inicio, es una gran oportunidad para reconfigurar tu vida.
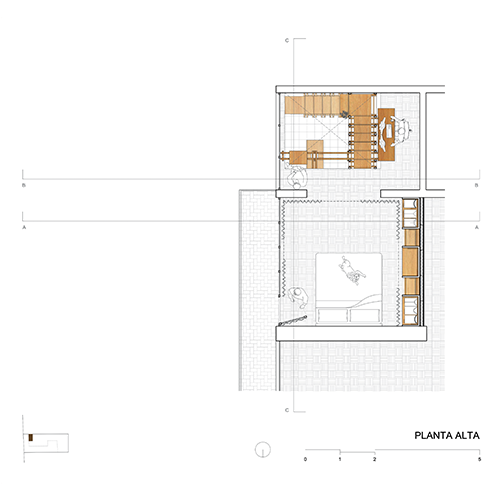
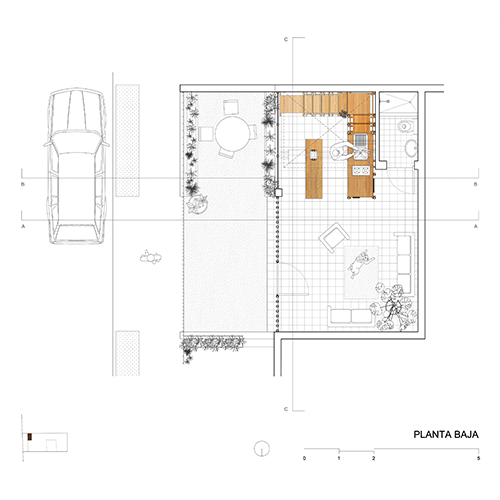
El proyecto es la duplicación del espacio de un pequeño estudio, que se adquiere de la casa principal, para convertirse en una vivienda cómoda en un barrio residencial de Quito para una pareja con su perro.
El diseño se desarrolló de manera muy rápida, se generó toda la información del proyecto con dibujos infinitos en 8 metros de un rollo calco.
La intervención arquitectónica es un hueco que conecta los dos espacios a través de un mueble multiusos en doble altura: escalera / estar / cocina / almacenaje / mesa de escritorio / mesita de relax – baranda y, además, generó un espacio para la proyección
de películas. La ubicación del hueco nos permitió una distribución óptima del espacio; a partir de la escalera se hicieron extensiones mínimas como ensamblajes espaciales, de esa manera se concentraron los usos.
La estructura es de madera de colorado, que replica la materialidad del piso y de las carpinterías existentes, dialogando e incorporándose con la misma esencia. Se trabajó con pernos y tuercas enfatizando el encuentro de las piezas.
Para que la nueva vivienda sea independiente, se cerró con una pared neutra y se empleó un mueble reciclado que se convirtió en armario para el nuevo cuarto. El mueble se abrió en tres partes y asumió todo el espacio disponible, los vacíos se convirtieron en los espacios para colgar. Por último, se ideó una cortina de 10 metros que enmarque el dormitorio y que acaricie sus límites para componerse como un escenario de nuevas oportunidades.