Proyectos

2. Habitacion 1
8. Biopiscina
2. Habitacion 1 (1)
1. Fachada Principal
3. Comedor-Cocina
5. Baño Principal
1.ARQ_CASA_MALAGA_BACALAR_CORTE E-E
1.ARQ_CASA_MALAGA_BACALAR_
1.ARQ_CASA_MALAGA_BACALAR_CORTE A-A
previous arrow
next arrow

Manuel Aguilar arquitecto: Casa Málaga en Quintana Roo

En el Pueblo de Bacalar, ubicado en el estado de Quintana Roo, guarda unas de las joyas naturales más bellas del Caribe, se encuentra Casa Málaga.

 

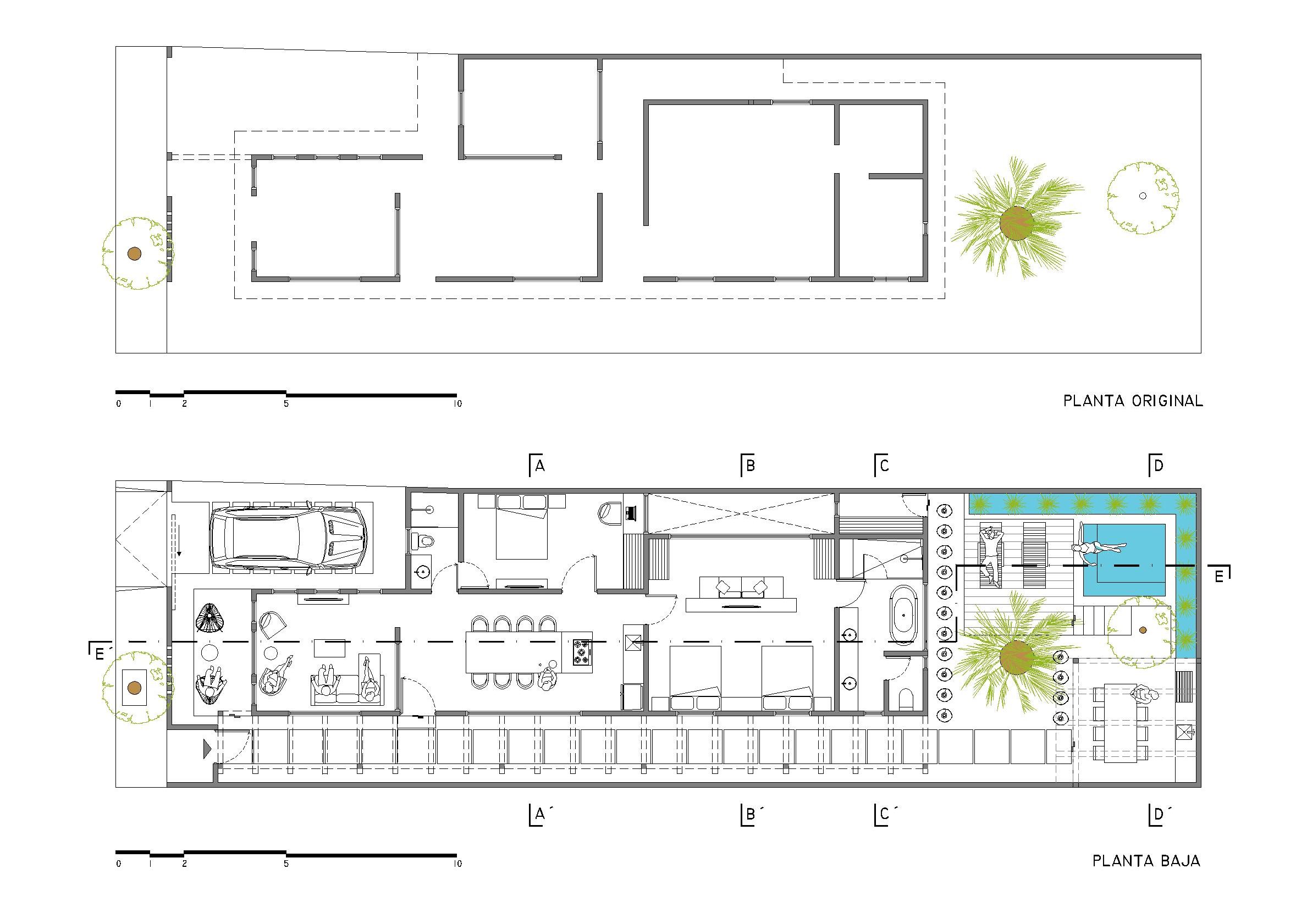
Málaga es una vivienda que se encuentra en una colonia céntrica, rodeada de vida y ese sabor a hogar. Desde el primer momento es honesta. Es un proyecto de remodelación y ampliación, conservando la construcción existente, que tiene una relación de cariño con los vecinos, la fachada existente se contextualizó y se terminó.

 

Málaga es una edificación que inicialmente ya era así por fuera, al observar las fotos del pasado uno se sorprende de ver que la casa sigue prácticamente igual. Cada espacio de la casa fue analizado para adaptarse a su nuevo dueño, hubo demolición mínima y se añadieron a la volumetría otros elementos para dar espacio a una vivienda más ventilada e iluminada.

 

Al acceder por la puerta principal nos llevamos la primera sorpresa, pues un pasillo semi abierto nos conduce hacia el interior de la casa por un costado y también nos direcciona al área social (el patio). La casa está diseñada para decirnos que una de las mejores maneras de vivirla es en su exterior. El interior está dividido muy al estilo de las casas del sureste de México. Estaremos siendo recibidos por el comedor y la cocina que son los protagonistas para los visitantes pues para los usuarios es muy importante mantener esa relación directa del acto de cocinar y ser el anfitrión en todo momento, a un costado tenemos una ventana interna con el acceso a la sala.

 

Su interior es neutro, su acabado de chukum cubre todas las superficies y toda la carpintería es en madera de Pucté, generando una atmósfera de calidez tropical.

 

Casa Málaga cuenta con dos habitaciones, una personal con baño propio (éste a su vez compartido con los visitantes) y otra compartida para dormir en pareja, en el interior ambos cuartos son sencillos y de materiales aparentes (chukum y pasta) que pulidos en éste clima transmiten frescura y limpieza. La habitación principal remata con un jardín iluminado naturalmente y que funge el gran creador de esa escena lumínica al interior.

 

El baño principal es una de las estrellas del proyecto, la tina es el spot perfecto, pues transmite esa sensación de estar bañándote al exterior y al mismo tiempo sentirte en tu propia privacidad. Lavarse la cara y tener el remate vegetal reflejando en el espejo es muy relajante.

En el patio se plantean 3 espacios: la biopiscina un cuerpo de agua para refrescarse bordeada de su propio jardín que funciona como filtro natural para su limpieza y recirculación de agua tratada, un comedor con asador techados y un área con dos sillas que descansan sobre un deck de madera de Pucté para descansar y contemplar la gran palmera que es la protagonista del proyecto.

 

Arquitectos autores principales:  Arq. Manuel Aguilar

Nombre del estudio o empresa: Manuel Aguilar Arquitecto Instagram: @manuel.aguilar.arq Facebook: Manuel Aguilar Arquitecto   

Colaboradores:

Construcción: Arq. Manuel Aguilar

Diseño de interior: Jesús Ortiz

Ingeniería Estructural: Ing. Eldad Villanueva

Editor de texto: Arq. Guillermo Reyes

Año de diseño: Julio 2021

Año de finalización:  Abril 2022

Metros cuadrados de terreno: 360 m2 

Metros cuadrados de construcción: 180.00 m2

Crédito fotografía:  Francisco Moreno   Instagram: @franciscomoreno.ph  

Materiales usados en la construcción: 

 Acabados en muros y pisos de Chukum marca Agua de Chukum.

Iluminación marca Tecnolite.

Griferia marca Gotonovo.

inodoros marca Interceramic.

Ventiladores marca Hunter Fan.

Toda la carpintería que se utilizó en el proyecto es una madera llamada Pucté  que es origen de la región.

Morgridge Hall inaugura en la UW-Madison: un modelo transformador para la investigación interdisciplinaria, la sostenibilidad y el diseño centrado en el ser humano

Seattle, Washington – 17 de febrero de 2026 – LMN y Kahler Slater anuncian con orgullo la finalización de Morgridge Hall en la Universidad de Wisconsin-Madison. Esta emblemática instalación marca el comienzo de una nueva era para la investigación y la educación interdisciplinarias, al servir como la nueva sede de la Escuela de Ciencias de la Computación, Datos e Información, uniendo por primera vez las disciplinas de la computación y los datos en el campus.

Níall McLaughlin Architects: Proyecto Ganador Concurso Internacional de Diseño del Museo del Bautismo de Jesús en Betania

El Concurso Internacional de Diseño del Museo del Bautismo de Jesús en Betania fue un proceso por invitación de dos etapas para seleccionar un equipo excepcional, multidisciplinario y dirigido por arquitectos, para entregar un diseño conceptual para un nuevo museo en honor al bautismo de Jesucristo en Betania Más Allá del Jordán.

Siete equipos de diseño multidisciplinarios fueron preseleccionados para el concurso y fueron invitados a desarrollar propuestas conceptuales para el nuevo museo.

Paulo Martins Arquitectura & Design: Casa Beira Mar II

Ubicada en el barrio de Beira Mar en Aveiro, donde las calles se curvan, las parcelas se tuercen y la ciudad se expande, una casa pequeña pero profundamente meditada cobra forma. En una parcela irregular y minimalista, el proyecto no intenta corregir la forma del lugar. La acepta. Y a partir de ella, construye.

Hersen Mendes Arquitetura: Renovación de la Embajada Británica en Brasilia

Cuando Hersen Mendes Arquitetura fue invitado a renovar la residencia oficial de la Embajada Británica en Brasil en 2023, la misión era acondicionar las habitaciones para la llegada de la embajadora Stephanie Al-Qaq —la primera mujer en ocupar el cargo en el país— y preparar el espacio para las celebraciones de la coronación del rey Carlos III y la reina consorte Camila en mayo de ese año.

Robert A.M. Stern Architects: Edificio Pezet 195 en San Isidro, Lima, Perú

Pezet 195 es el sexto edificio de apartamentos en el barrio de San Isidro de Lima diseñado por el legendario estudio de arquitectura de Robert A.M. Stern. Consta de una torre gemela de 24 pisos con vistas al Club de Golf de Lima y un edificio residencial más pequeño de 8 pisos con vista al Parque Roosevelt en la parte trasera. Las torres están unidas por un amplio jardín formal central.

Studio Alfa: Brew House

Brew House un proyecto de Studio Alfa, captura la esencia de la arquitectura contemporánea ecuatoriana. Ubicado en Quito, en la Mitad del Mundo, la obra destaca por su audaz materialidad —donde la piedra de mármol habano en gaviones, el ladrillo y el acero se funden en una estructura altamente expresiva— conformando una casa-taller. Al integrar el habitar y con el producir (cerveza artesanal), el proyecto desafía los límites convencionales del habitar, convirtiéndose en un referente de diseño mixto con gestos arquitectónicos poéticos.

Pitta Arquitetura: Residencia JV en Ubatuba, São Paulo

La Residencia JV en Ubatuba, São Paulo, combina un diseño contemporáneo con una integración sensible en la Mata Atlántica. El proyecto, diseñado por Pitta Arquitetura, prioriza el uso de materiales naturales, el confort térmico y una forma de habitar integrada en una vivienda de 260 m².

3ME Arquitectura: Catalejos Urbanos

El Bajío mexicano, un territorio donde no existen registros de grandes asentamientos prehispánicos, nos revela su historia a través de su riqueza natural y sus procesos históricos. La fertilidad de sus tierras junto al Río Lerma permitió el desarrollo agrícola, mientras que la minería en Guanajuato marcó un hito en la historia de la Nueva España, generando un profundo sentido de identidad y cultura.

ZHA diseñará el Distrito Cultural de la Bahía de Qiantang

El Eje Central de Agua de la Bahía de Qiantang da forma a una nueva secuencia de parques paisajísticos, terrazas y jardines a lo largo del Canal Zhedong, en el distrito de Xiaoshan, Hangzhou. Esta intervención redefine las antiguas áreas industriales de la cuenca del canal y las transforma en un corredor verde que se entrelaza con el corazón de la ciudad.