Nombre del Proyecto: Museo Nacional de Arte Contemporáneo en Lisboa
Arquitectura: Luis Manuel Pereira + del medio atelier + Baile Menduiña
Equipo de proyecto: Baile Menduiña (Rodrigo Baile, Arturo Menduiña), del medio atelier (Mafalda Peres, Michel Zeca, Claudia Silveira)
Colaboradores: Asesora de exposiciones del museo, Heloisa Vivanco
Ingeniero estructural: Edgar Cardoso
Sitio Web: https://www.delmedioatelier.com + https://bailemenduina.com
Instagram: @delmedioatelier + @bailemenduina
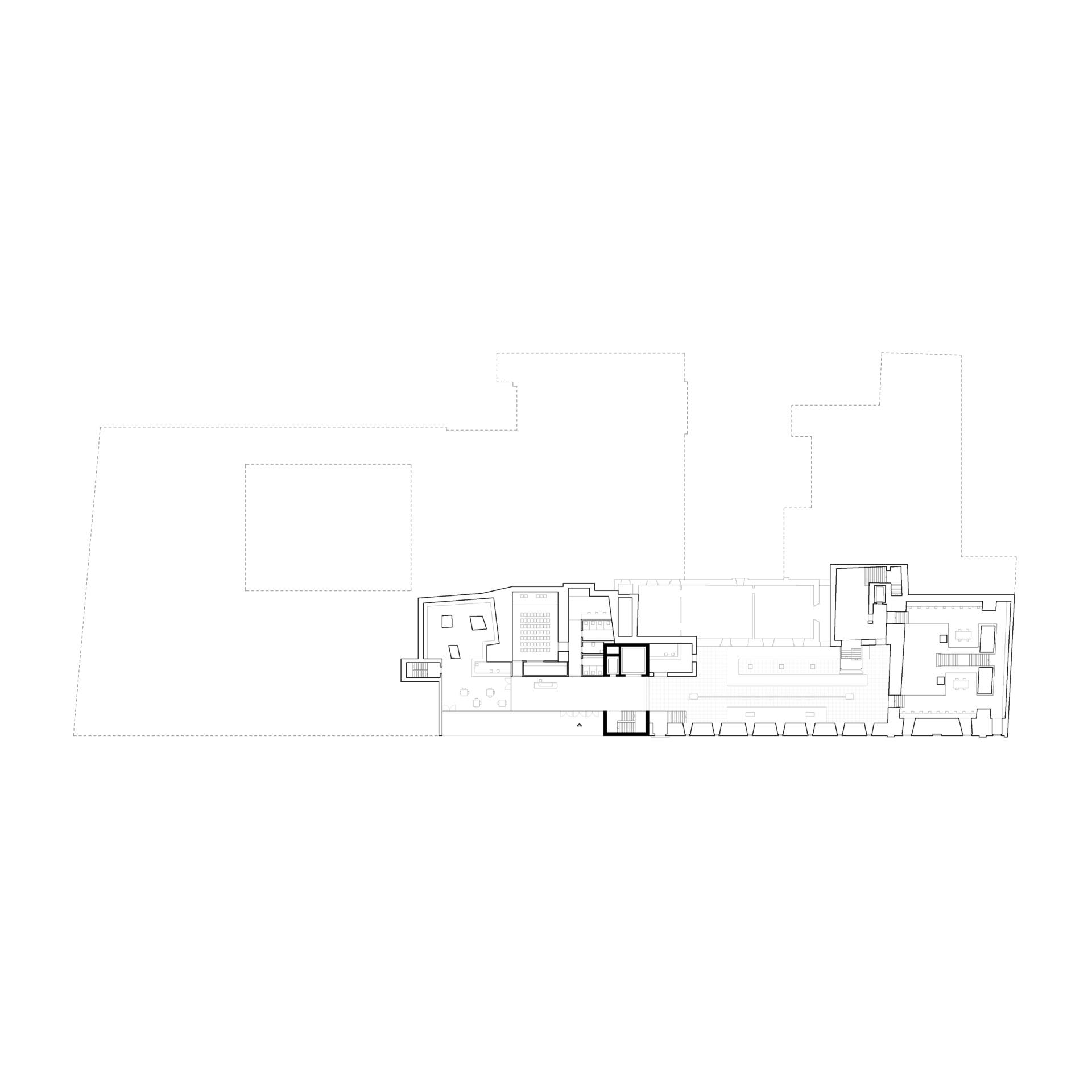
El proyecto de remodelación y ampliación del Museo Nacional de Arte Contemporáneo (MNAC) en Lisboa tiene como objetivo revitalizar este espacio cultural en el histórico barrio del Chiado, un área de importancia patrimonial. La propuesta integra los edificios históricos con un nuevo volumen que busca equilibrar la memoria histórica y la arquitectura contemporánea. Este volumen respeta el valor histórico del entorno, creando una continuidad visual y funcional con la ciudad, a la vez que incorpora elementos de diseño contemporáneo que lo consolidan como un referente cultural y arquitectónico.
La estructura del nuevo volumen actúa como un mediador entre los edificios históricos, conectando espacios de exposición y áreas de circulación, y mejorando la experiencia del visitante. La base del edificio se reviste de piedra lioz, material emblemático de Lisboa, que le otorga una presencia respetuosa y enraizada en la tradición. En los niveles superiores, el uso de mosaico cerámico rústico aporta una textura moderna que enriquece el perfil visual del edificio. Este enfoque material refleja una armonía entre pasado y presente, permitiendo que el edificio se perciba como una extensión natural del barrio del Chiado.
El diseño organiza el recorrido museográfico en un sistema lineal, facilitando la circulación y creando una experiencia fluida en cada área expositiva. En el nivel de acceso, el vestíbulo principal conecta directamente con el jardín de esculturas, un espacio exterior que actúa como un lugar de transición entre el museo y la vida urbana. Este jardín no solo funciona como un área pública para la contemplación de obras al aire libre, sino que también reafirma el papel del MNAC como un centro cultural accesible y abierto a la comunidad. La disposición de este jardín busca integrar el museo en los recorridos naturales del barrio, reforzando su conexión con el entorno.
En términos de funcionalidad, los espacios expositivos están organizados para que los visitantes experimenten una narrativa visual continua y secuencial. La exposición permanente se encuentra en el nivel inferior, mientras que las salas de exposiciones temporales y la biblioteca están ubicadas en los niveles superiores, estableciendo una jerarquía espacial que permite una experiencia museográfica rica. En el último nivel, el proyecto incluye una terraza longitudinal que ofrece vistas panorámicas de Lisboa, proporcionando un final simbólico al recorrido del museo.
Esta terraza sirve también como un punto de contemplación que fortalece la relación entre el museo y su contexto urbano, permitiendo que los visitantes se conecten visualmente con la ciudad y el río.
Para mejorar la sostenibilidad, la fachada está diseñada para optimizar la luz natural, reduciendo la necesidad de iluminación artificial en las áreas expositivas. Además, el edificio incorpora sistemas de control térmico pasivo, aprovechando las propiedades de los materiales para regular la temperatura, lo cual contribuye a reducir el consumo energético.
Los niveles subterráneos albergan las áreas técnicas y de almacenamiento, garantizando una gestión eficiente de las colecciones y de los servicios operativos.
Esta organización permite separar las funciones técnicas del espacio público, manteniendo una distribución funcional que facilita el trabajo del personal sin interferir en la experiencia del visitante. En el nivel de acceso, el vestíbulo cuenta con una tienda y una cafetería con acceso directo al jardín de esculturas, integrando estos espacios en la vida cotidiana del barrio y permitiendo que funcionen de manera independiente. Las salas de exposiciones temporales están diseñadas con iluminación ajustable y elementos móviles, lo que facilita una disposición flexible y versátil que se adapta a diferentes formatos de exposición, promoviendo una experiencia interactiva y dinámica.
El MNAC también destaca por su compromiso con la accesibilidad. Todas las áreas están adaptadas para personas con movilidad reducida, con rampas, ascensores y señalización adecuada, garantizando una experiencia inclusiva y accesible para todos los visitantes. Además, el proyecto incorpora un espacio de restauración visible al público, donde los visitantes pueden observar el proceso de conservación de las obras, añadiendo un valor educativo y de transparencia a la visita.
El nuevo diseño del MNAC representa un compromiso con la sostenibilidad y la integración cultural en el Chiado. Este enfoque arquitectónico permite que el museo se mantenga fiel a su legado patrimonial al tiempo que adopta una visión de innovación y apertura hacia el futuro. Con una estructura que combina funcionalidad, accesibilidad e integración urbana, el MNAC se convierte en un espacio donde el arte contemporáneo y la arquitectura dialogan con la comunidad y el contexto urbano. Este proyecto asegura que el MNAC continúe evolucionando en armonía con la ciudad, consolidándose como un centro cultural de referencia donde el arte y la arquitectura se fusionan para enriquecer la experiencia de cada visitante.