Proyectos

Artboard 1
Artboard 2
Artboard 3
Artboard 4
Artboard 5
Artboard 6
Artboard 7
Artboard 9
previous arrow
next arrow

SAM CRAWFORD ARCHITECTS (SCA): Surgido de las cenizas

Surgido de las cenizas: un pabellón de restaurante se encuentra en armonía en el entorno de un parque histórico.

 

Un popular café resultó gravemente dañado por un incendio en 2016.

 

Desde el caparazón, ha surgido un nuevo restaurante dentro de la misma huella, recuperando y reutilizando la tela restante.


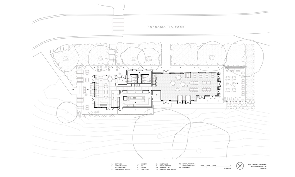
El Pabellón del Parque Parramatta de Sam Crawford Architects incluye un restaurante y servicios públicos y se conecta con el río y su extraordinario entorno paisajístico declarado Patrimonio de la Humanidad por la UNESCO.

 

Sam Crawford explica: “El impulsor clave del diseño fue mantener la huella del antiguo edificio del café para evitar la perturbación de importantes artefactos indígenas y europeos primitivos. La reutilización también fue fundamental: la losa, las paredes, los ladrillos, muchas ventanas y puertas de acero y algunas vigas del techo se reciclaron. Era un ejercicio de gimnasia: no podíamos excavar nada, los servicios públicos tenían que permanecer en el mismo lugar y, por supuesto, teníamos que cumplir con el código de construcción del siglo XXI. Y estar preparado para el futuro para adaptarse a usos cambiantes”.

 

“Queríamos respetar las capas de la historia del sitio: el entorno del parque tiene un rico período de ocupación por parte del clan Burramatta del pueblo Darug y una conexión continua para la comunidad indígena. Es uno de los once sitios que forman la lista del Patrimonio Mundial de los ‘Sitios de convictos australianos’, y contiene el edificio público más antiguo que queda y la cabaña de trabajadores más antigua que queda en Australia”, agregó Crawford.

 

También se encuentra en el sitio de antiguos cobertizos para vestirse (también destruidos por el fuego) para bañistas de río que datan de alrededor de 1912, cuando se levantó la prohibición de bañarse en público. Tiene vista a ‘Little Coogee’, un antiguo lugar para nadar y hacer un picnic en las orillas del río Parramatta. Y se conecta a ciclovías y pasarelas en el parque.

 

Abierto y acogedor, el edificio tiene grandes ventanas y puertas con marcos de acero y altos techos inclinados, que brindan luz natural y vistas claras del parque y el río y la floreciente ciudad de Parramatta en la distancia. El largo techo de metal produce una forma llamativa con materiales ligeros y transparentes para aumentar la conexión entre los espacios interiores y exteriores. El techo translúcido en el extremo suroeste está en voladizo para crear un área de comedor exterior cubierta adicional, lo que aumenta la capacidad del comedor y brinda sombra del sol de la tarde.

 

Un fuerte portal de entrada es un marcador en el paisaje, que proporciona un vínculo visual a través del edificio con el río y media entre dos geometrías de techo a dos aguas. El umbral de gran tamaño da la bienvenida, reúne y dirige a los clientes y enmarca la vista de una gran higuera y el río más allá.

El pabellón ahora alberga un restaurante de 300 asientos Misc. abrió recientemente después de retrasos por covid, con un equipamiento interior del estudio de diseño Nic Graham & Associates.

 

DATOS DEL PROYECTO


Cliente Parramatta Park & ​​Western Sydney Parklands Trusts Ubicación Parramatta
Estado Construido 2022
Grupo de proyecto
Sam Crawford, Louisa Gee, Ken Warr, Allen Huang, Caitlin Condon Constructores Interiores de Grindley
Ingeniero Estructural Perdiz
Ingeniero Hidráulico Servicios Hidráulicos en Línea
Ingeniero Mecánico Ingeniería Evolucionada Ingeniero Eléctrico Iluminación, Arte + Ciencia

Paisaje McGregor Coxall
Sección J Consultor BCA Energy Quality Surveyor Z & L Consulting
Consultoría PCA Anthony Protas
el diseñador de interiores Nic Graham & Associates, el fotógrafo Brett Boardman; parker blain


ACERCA DE LOS ARQUITECTOS DE SAM CRAWFORD (SCA)


SCA es una práctica arquitectónica impulsada por el diseño con sede en Sydney, Australia. Durante los últimos 20 años, la práctica galardonada ha establecido una reputación de excelencia en el diseño de proyectos residenciales, culturales, públicos y educativos. Se centran en siete principios básicos: Personas, Lugar, Propósito, Deleite, Eficiencia, Sostenibilidad y Valor.

https://samcrawfordarchitects.com.au

Morgridge Hall inaugura en la UW-Madison: un modelo transformador para la investigación interdisciplinaria, la sostenibilidad y el diseño centrado en el ser humano

Seattle, Washington – 17 de febrero de 2026 – LMN y Kahler Slater anuncian con orgullo la finalización de Morgridge Hall en la Universidad de Wisconsin-Madison. Esta emblemática instalación marca el comienzo de una nueva era para la investigación y la educación interdisciplinarias, al servir como la nueva sede de la Escuela de Ciencias de la Computación, Datos e Información, uniendo por primera vez las disciplinas de la computación y los datos en el campus.

Níall McLaughlin Architects: Proyecto Ganador Concurso Internacional de Diseño del Museo del Bautismo de Jesús en Betania

El Concurso Internacional de Diseño del Museo del Bautismo de Jesús en Betania fue un proceso por invitación de dos etapas para seleccionar un equipo excepcional, multidisciplinario y dirigido por arquitectos, para entregar un diseño conceptual para un nuevo museo en honor al bautismo de Jesucristo en Betania Más Allá del Jordán.

Siete equipos de diseño multidisciplinarios fueron preseleccionados para el concurso y fueron invitados a desarrollar propuestas conceptuales para el nuevo museo.

Paulo Martins Arquitectura & Design: Casa Beira Mar II

Ubicada en el barrio de Beira Mar en Aveiro, donde las calles se curvan, las parcelas se tuercen y la ciudad se expande, una casa pequeña pero profundamente meditada cobra forma. En una parcela irregular y minimalista, el proyecto no intenta corregir la forma del lugar. La acepta. Y a partir de ella, construye.

Hersen Mendes Arquitetura: Renovación de la Embajada Británica en Brasilia

Cuando Hersen Mendes Arquitetura fue invitado a renovar la residencia oficial de la Embajada Británica en Brasil en 2023, la misión era acondicionar las habitaciones para la llegada de la embajadora Stephanie Al-Qaq —la primera mujer en ocupar el cargo en el país— y preparar el espacio para las celebraciones de la coronación del rey Carlos III y la reina consorte Camila en mayo de ese año.

Robert A.M. Stern Architects: Edificio Pezet 195 en San Isidro, Lima, Perú

Pezet 195 es el sexto edificio de apartamentos en el barrio de San Isidro de Lima diseñado por el legendario estudio de arquitectura de Robert A.M. Stern. Consta de una torre gemela de 24 pisos con vistas al Club de Golf de Lima y un edificio residencial más pequeño de 8 pisos con vista al Parque Roosevelt en la parte trasera. Las torres están unidas por un amplio jardín formal central.

Studio Alfa: Brew House

Brew House un proyecto de Studio Alfa, captura la esencia de la arquitectura contemporánea ecuatoriana. Ubicado en Quito, en la Mitad del Mundo, la obra destaca por su audaz materialidad —donde la piedra de mármol habano en gaviones, el ladrillo y el acero se funden en una estructura altamente expresiva— conformando una casa-taller. Al integrar el habitar y con el producir (cerveza artesanal), el proyecto desafía los límites convencionales del habitar, convirtiéndose en un referente de diseño mixto con gestos arquitectónicos poéticos.

Pitta Arquitetura: Residencia JV en Ubatuba, São Paulo

La Residencia JV en Ubatuba, São Paulo, combina un diseño contemporáneo con una integración sensible en la Mata Atlántica. El proyecto, diseñado por Pitta Arquitetura, prioriza el uso de materiales naturales, el confort térmico y una forma de habitar integrada en una vivienda de 260 m².

3ME Arquitectura: Catalejos Urbanos

El Bajío mexicano, un territorio donde no existen registros de grandes asentamientos prehispánicos, nos revela su historia a través de su riqueza natural y sus procesos históricos. La fertilidad de sus tierras junto al Río Lerma permitió el desarrollo agrícola, mientras que la minería en Guanajuato marcó un hito en la historia de la Nueva España, generando un profundo sentido de identidad y cultura.

ZHA diseñará el Distrito Cultural de la Bahía de Qiantang

El Eje Central de Agua de la Bahía de Qiantang da forma a una nueva secuencia de parques paisajísticos, terrazas y jardines a lo largo del Canal Zhedong, en el distrito de Xiaoshan, Hangzhou. Esta intervención redefine las antiguas áreas industriales de la cuenca del canal y las transforma en un corredor verde que se entrelaza con el corazón de la ciudad.