Proyectos

Artboard 1
Artboard 2
Artboard 3
Artboard 4
Artboard 5
Artboard 6
Artboard 7
Artboard 8
Artboard 9
Artboard 10
Artboard 1
Artboard 2
Artboard 3
Artboard 4
Artboard 5
Artboard 6
Artboard 7
Artboard 8
Artboard 9
Artboard 10
Artboard 11
previous arrow
next arrow

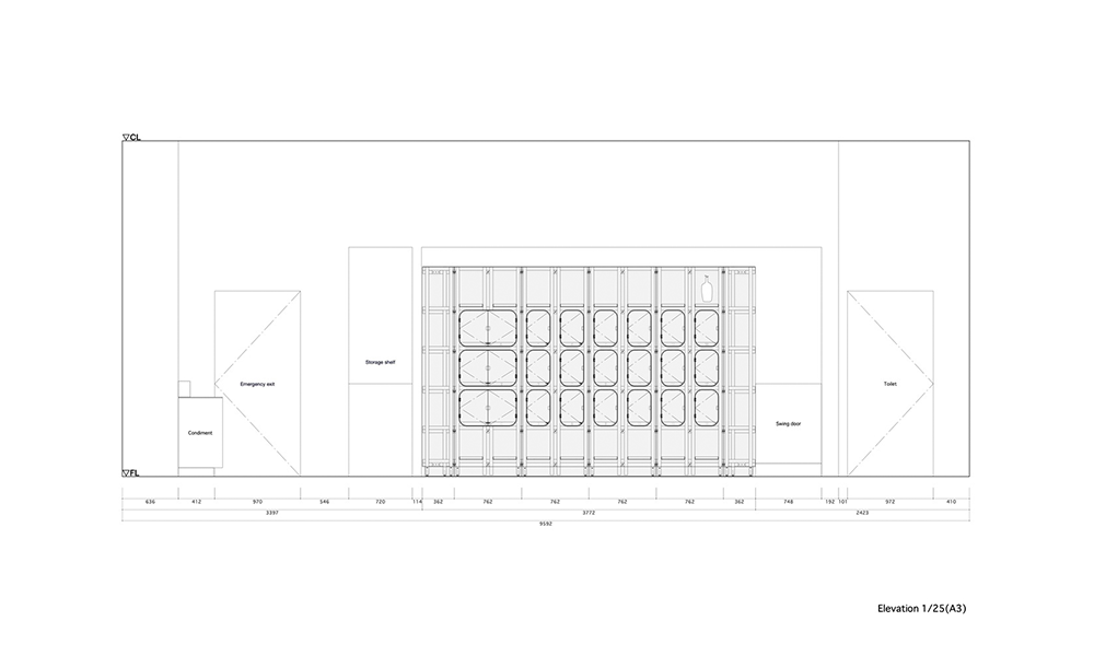
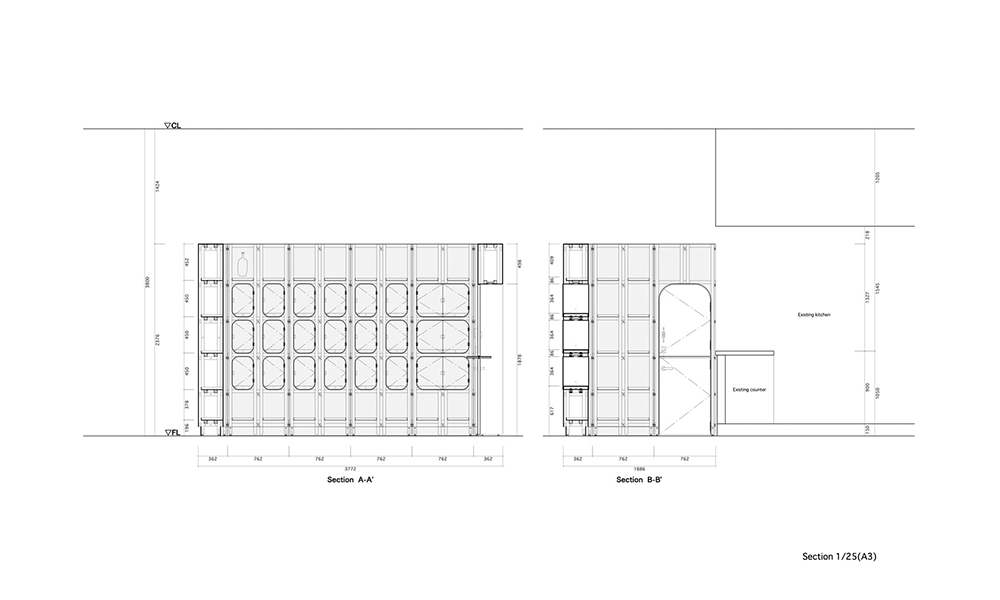
Schemata Architects: Blue Bottle Coffee Pop Up Cafe – Shibuya

Este proyecto se inició cuando James Freeman, el fundador de Blue Bottle Coffee, me hizo la oferta después de mucho tiempo. Este desarrollo se inició como respuesta a que la atención al cliente presencial se estaba volviendo cada vez más difícil debido a la pandemia del COVID-19, y se necesitaban medidas para la atención indirecta al cliente. El diseño se inspiró en la imagen de una colmena. Hasta hace poco era importante colocar siempre el mostrador frente a la entrada para dar la bienvenida a las personas, pero lamentablemente ya no es factible. Ahora, la clave está en cómo transmitir la calidez de forma indirecta. Decidimos usar básicamente madera para crear un mecanismo que brille suavemente en respuesta a la apertura y cierre de la puerta, y cubrimos la superficie con acrílico esmerilado para dejar que el brillo se filtrara suavemente. El «accesorio de venta estilo casillero» resultante ahora está disponible en la parte delantera de la tienda, donde puede ordenar y comprar bebidas desde una terminal de pedidos de bebidas dedicada, y es posible que deba esperar un poco. Pero pronto, podrá ordenar de forma remota con una aplicación móvil y comprar una deliciosa taza de café sin tiempo para esperar. Este accesorio se usará más ampliamente en combinación con métodos de venta tan fluidos.

Título: BLUE BOTTLE COFFEE Pop Up Cafe – Shibuya –
Arquitectos: Jo Nagasaka / Schemata Architects
Equipo del proyecto: Makoto Kohno, Yuko Yamashita, Yuki Ishibashi
Dirección: 2-24-12 Shibuya, Shibuya-ku, Tokio
Shibuya Scramble Square 3F Espacio para eventos
Uso: Soporte de café
Construcción: TANQUE
Colaboración: Nuevas innovaciones (Diseño tecnológico)
Superficie: 60m²
Finalización: Noviembre / 2021
Abierto: Diciembre / 2021 – Febrero / 2022
Foto: Takumi Ota

Morgridge Hall inaugura en la UW-Madison: un modelo transformador para la investigación interdisciplinaria, la sostenibilidad y el diseño centrado en el ser humano

Seattle, Washington – 17 de febrero de 2026 – LMN y Kahler Slater anuncian con orgullo la finalización de Morgridge Hall en la Universidad de Wisconsin-Madison. Esta emblemática instalación marca el comienzo de una nueva era para la investigación y la educación interdisciplinarias, al servir como la nueva sede de la Escuela de Ciencias de la Computación, Datos e Información, uniendo por primera vez las disciplinas de la computación y los datos en el campus.

Níall McLaughlin Architects: Proyecto Ganador Concurso Internacional de Diseño del Museo del Bautismo de Jesús en Betania

El Concurso Internacional de Diseño del Museo del Bautismo de Jesús en Betania fue un proceso por invitación de dos etapas para seleccionar un equipo excepcional, multidisciplinario y dirigido por arquitectos, para entregar un diseño conceptual para un nuevo museo en honor al bautismo de Jesucristo en Betania Más Allá del Jordán.

Siete equipos de diseño multidisciplinarios fueron preseleccionados para el concurso y fueron invitados a desarrollar propuestas conceptuales para el nuevo museo.

Paulo Martins Arquitectura & Design: Casa Beira Mar II

Ubicada en el barrio de Beira Mar en Aveiro, donde las calles se curvan, las parcelas se tuercen y la ciudad se expande, una casa pequeña pero profundamente meditada cobra forma. En una parcela irregular y minimalista, el proyecto no intenta corregir la forma del lugar. La acepta. Y a partir de ella, construye.

Hersen Mendes Arquitetura: Renovación de la Embajada Británica en Brasilia

Cuando Hersen Mendes Arquitetura fue invitado a renovar la residencia oficial de la Embajada Británica en Brasil en 2023, la misión era acondicionar las habitaciones para la llegada de la embajadora Stephanie Al-Qaq —la primera mujer en ocupar el cargo en el país— y preparar el espacio para las celebraciones de la coronación del rey Carlos III y la reina consorte Camila en mayo de ese año.

Robert A.M. Stern Architects: Edificio Pezet 195 en San Isidro, Lima, Perú

Pezet 195 es el sexto edificio de apartamentos en el barrio de San Isidro de Lima diseñado por el legendario estudio de arquitectura de Robert A.M. Stern. Consta de una torre gemela de 24 pisos con vistas al Club de Golf de Lima y un edificio residencial más pequeño de 8 pisos con vista al Parque Roosevelt en la parte trasera. Las torres están unidas por un amplio jardín formal central.

Studio Alfa: Brew House

Brew House un proyecto de Studio Alfa, captura la esencia de la arquitectura contemporánea ecuatoriana. Ubicado en Quito, en la Mitad del Mundo, la obra destaca por su audaz materialidad —donde la piedra de mármol habano en gaviones, el ladrillo y el acero se funden en una estructura altamente expresiva— conformando una casa-taller. Al integrar el habitar y con el producir (cerveza artesanal), el proyecto desafía los límites convencionales del habitar, convirtiéndose en un referente de diseño mixto con gestos arquitectónicos poéticos.

Pitta Arquitetura: Residencia JV en Ubatuba, São Paulo

La Residencia JV en Ubatuba, São Paulo, combina un diseño contemporáneo con una integración sensible en la Mata Atlántica. El proyecto, diseñado por Pitta Arquitetura, prioriza el uso de materiales naturales, el confort térmico y una forma de habitar integrada en una vivienda de 260 m².

3ME Arquitectura: Catalejos Urbanos

El Bajío mexicano, un territorio donde no existen registros de grandes asentamientos prehispánicos, nos revela su historia a través de su riqueza natural y sus procesos históricos. La fertilidad de sus tierras junto al Río Lerma permitió el desarrollo agrícola, mientras que la minería en Guanajuato marcó un hito en la historia de la Nueva España, generando un profundo sentido de identidad y cultura.

ZHA diseñará el Distrito Cultural de la Bahía de Qiantang

El Eje Central de Agua de la Bahía de Qiantang da forma a una nueva secuencia de parques paisajísticos, terrazas y jardines a lo largo del Canal Zhedong, en el distrito de Xiaoshan, Hangzhou. Esta intervención redefine las antiguas áreas industriales de la cuenca del canal y las transforma en un corredor verde que se entrelaza con el corazón de la ciudad.