En el acelerado mundo actual, la búsqueda de una mayor calidad de vida es cada vez mayor, y los conceptos de diseño combinan cada vez más practicidad y estética a la perfección. Songmont, reconocida marca por sus bolsos prácticos y estéticos, se compromete a explorar experiencias de usuario que se adapten a los estilos de vida modernos.
ARCHSTUDIO creó un espacio de marca para Songmont, incorporando la esencia de la marca al diseño. Basado en el concepto de «Frame Courtyard», el equipo de diseño introdujo ingeniosamente una serie de marcos meticulosamente elaborados, rompiendo las limitaciones de los límites espaciales tradicionales y capturando las vistas. Este diseño fomenta una coexistencia armoniosa entre el interior y el exterior, y una clara jerarquía espacial, brindando una experiencia única.
#01
Antecedentes del Proyecto
Songmont es una destacada marca china dedicada a la creación de bolsos funcionales y estéticos, inspirada en la filosofía oriental centrada en la autoconciencia y la libertad. La marca perfecciona continuamente el diseño de la experiencia de usuario en el contexto de los estilos de vida modernos. Durante la última década, Songmont ha alcanzado un amplio reconocimiento en el mercado nacional y ha comenzado a dejar huella a nivel internacional.
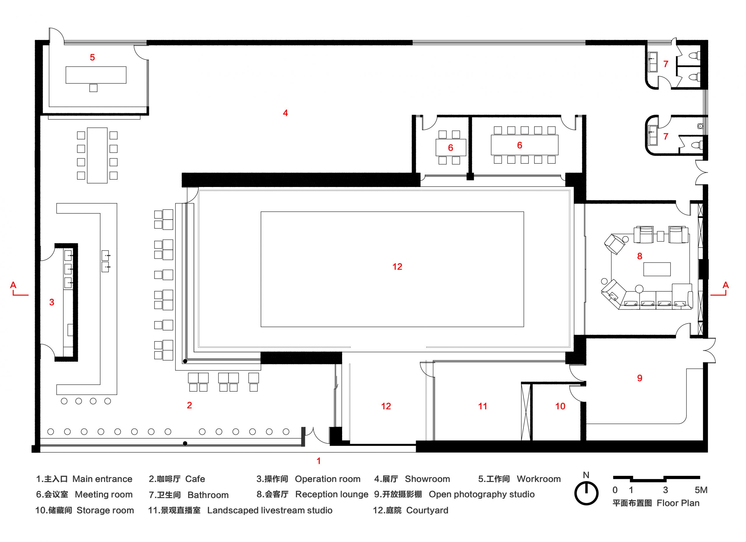
Para ampliar aún más la influencia de su marca y transmitir su espíritu, Songmont encargó a ARCHSTUDIO el diseño de un espacio que integrara múltiples funciones, como exposiciones, recepciones, reuniones, sesiones de fotos y transmisiones en vivo. Además, ofrece un lugar donde los visitantes pueden relajarse y disfrutar de experiencias memorables.
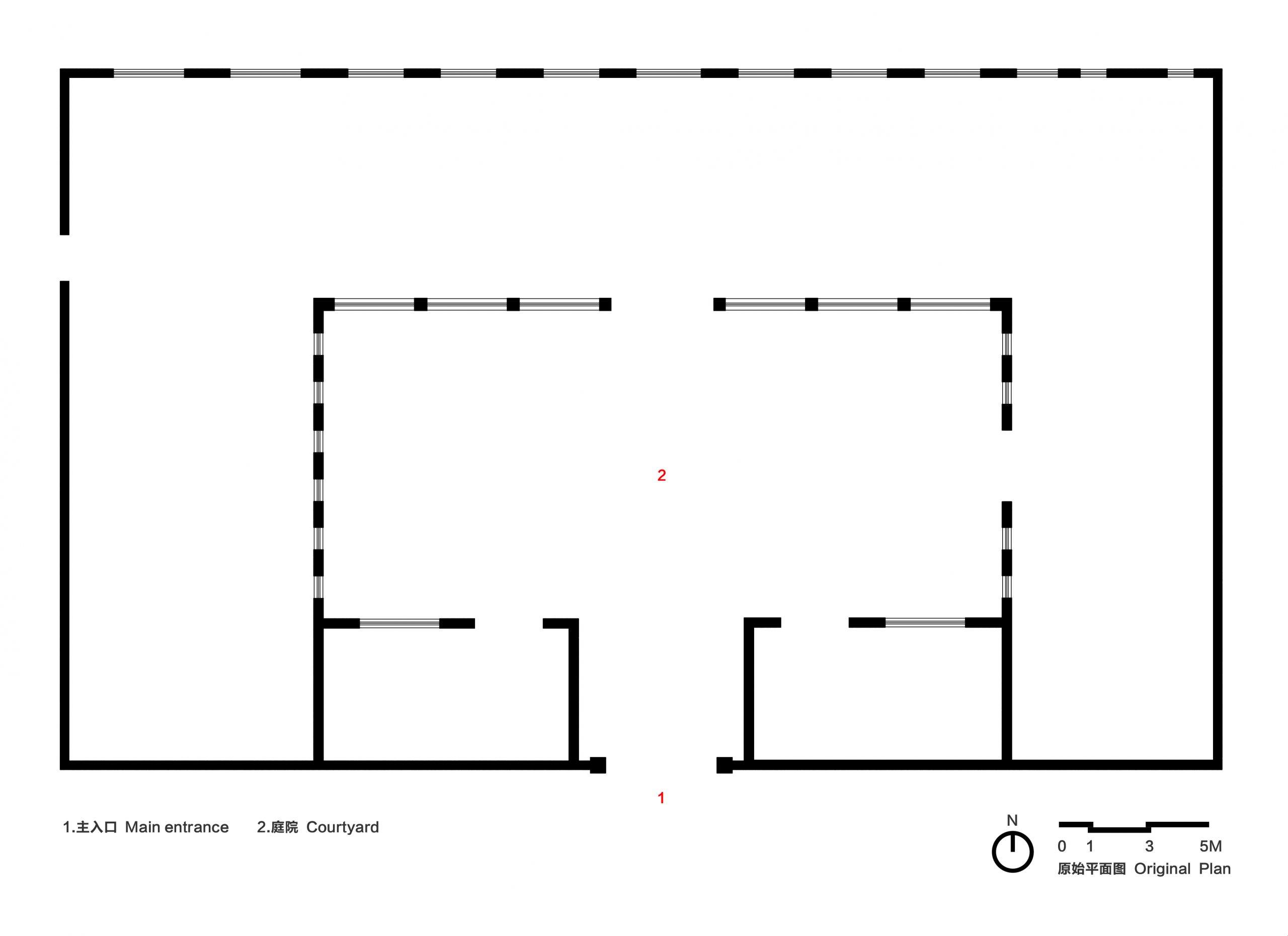
El proyecto se ubica en un parque cultural y creativo en la ciudad de Cuigezhuang, distrito de Chaoyang, Pekín. Alejado del bullicio de la ciudad, el sitio ofrece un entorno tranquilo y cultural. El edificio original era una fábrica de una sola planta, estilo patio, con techos inclinados, construida con una estructura ligera de acero. Si bien el edificio tenía cierta estética industrial, la distribución general del espacio era relativamente simple y carecía de un carácter distintivo. El principal reto fue conservar la integridad estructural original y, al mismo tiempo, reinventar el espacio con un atractivo e identidad únicos.
#02
«Patio de Marcos»
ARCHSTUDIO concibió el diseño con el concepto de «Patio de Marcos», rompiendo los límites del espacio tradicional mediante una serie de marcos cuidadosamente diseñados. Estos marcos no solo mejoran la relación espacial entre el interior y el exterior, sino que también establecen una experiencia espacial con una clara jerarquía. Durante la renovación, el equipo de diseño examinó cuidadosamente las fachadas y cubiertas del edificio original. Mediante la introducción de marcos de diferentes tamaños, optimizaron la iluminación y la ventilación natural, creando una nueva relación entre el interior y el exterior. Esta transformación inyectó nueva vida a la anterior distribución monótona de estilo patio.
Para mejorar el rendimiento físico del edificio, el equipo de diseño añadió una capa de aislamiento a los nuevos muros continuos, protegiéndolo eficazmente de las influencias ambientales externas. Además, las canaletas de agua de lluvia ocultas dentro de estos muros disimulan ingeniosamente los aleros desordenados de la estructura original, dándole al edificio una apariencia más limpia y estética. Estos nuevos muros no solo cumplen una función protectora, sino que también actúan como una ventana que muestra el espíritu de la marca, con cada marco evocando una cautivadora pintura en pergamino cuidadosamente seleccionada.
La cafetería, pieza clave del proyecto, se diseñó con meticulosos detalles. El equipo de diseño introdujo marcos horizontales para maximizar la apertura de la cafetería tanto al parque como al patio interior, creando una atractiva dinámica entre «ver y ser visto». Los marcos se extienden hacia el interior, formando una barra y asientos tipo cabina. Este diseño difumina los límites entre el mobiliario y la arquitectura, promoviendo una fluidez natural dentro del espacio. Los visitantes pueden disfrutar de la comida mientras contemplan las hermosas vistas exteriores, lo que aumenta su sensación general de placer y relajación.
El patio destaca como otro punto culminante de la renovación. En el centro del patio, el equipo de diseño introdujo un fino paisaje acuático reflectante, que refleja el cielo azul y las nubes blancas. Con la suave brisa, se forman ondas en el agua, casi como si filtraran el ruido de la ciudad y crearan una atmósfera serena. Este paisaje acuático reflejado no solo embellece el entorno, sino que también sirve como un lugar clave para lanzamientos de productos. Durante los eventos, se puede drenar el agua y añadir una marquesina para crear un espacio semiexterior que satisface las necesidades funcionales y ofrece mayor flexibilidad espacial.
Alrededor del patio, se diseñaron muros con diferentes marcos que se extienden hacia diversas salas funcionales, como la sala de reuniones, el salón de recepción y el estudio de transmisión en vivo. Estos marcos se abren rítmicamente hacia el patio, y las lamas motorizadas en el exterior garantizan una privacidad ajustable según el uso de las salas.
Dentro del edificio original de la fábrica, la densa distribución las ligeras cerchas de acero creaban una sensación espacial algo monótona y opresiva. Para solucionar esto, el equipo de diseño talló marcos en forma de embudo de diferentes tamaños en el techo. Estos marcos canalizan la suave luz natural hacia el espacio, a la vez que elevan la altura del techo, ofreciendo una experiencia espacial renovada.
Al seleccionar los acabados, el equipo de diseño consideró cuidadosamente la estética de la marca, optando por tonos puros y cálidos. Se utilizó microcemento negro para el suelo, cuya sutil superficie reflectante evoca las ondas del agua en el patio, creando una atmósfera armoniosa y unificada. Se utilizó piedra beige para algunas paredes, encimeras y pasamanos, enriqueciendo aún más la paleta de materiales y realzando la calidad táctil del espacio.
El diseño del proyecto se aleja de las formas de hormigón, difuminando los límites entre el interior y el exterior. El juego de luces y sombras, la apertura y la privacidad invitan a la exploración, evocando la introspección y la contemplación arraigadas en la filosofía oriental.
Información del proyecto
Nombre del proyecto: Espacio Songmont
Ubicación: Pekín
Firma de diseño: ARCHSTUDIO
Diseñadores jefes: Han Wenqiang, Li Xiaoming
Diseñador: Wang Tonghui
Consultoría estructural: Zhu Chang’an
Consultoría del eurodiputado: Zheng Baowei, Li Dongjie, Li Zhongjuan
Edición de imágenes: Wang Tonghui
Empresa constructora: Beijing Jingyu Decoración Co., Ltd.
Área del proyecto: 695 m2
Fotografía: Jin Weiqi