Ubicado en una de las principales avenidas de Manaus, en el estado de Amazonas (Brasil), el edificio comercial VIPE 201, diseñado por Vipe Arquitetura, trae a la ciudad una propuesta arquitectónica con un lenguaje único, combinado con un enfoque atento al confort térmico.
El proyecto utiliza materiales seleccionados para adaptarse a las condiciones locales, reduciendo la necesidad de mantenimiento frecuente. La construcción utiliza piezas prefabricadas de hormigón, paneles de acero corten y una extensa vegetación vertical, que cobra protagonismo en las fachadas.
La estructura del edificio consta de solo seis pilares y tres losas continuas. La fachada principal, orientada al oeste, está equipada con grandes brises prefabricados que regulan la entrada de luz natural.
Los espacios internos están delimitados por planos de vidrio empotrados y su transparencia promueve una conexión visual constante entre el interior y el exterior, integrando el edificio con la ciudad. La iluminación natural se potencia mediante aberturas estratégicas en los extremos de las losas, permitiendo que la luz llegue a la vegetación de las jardineras y brises. Además, los paneles solares instalados en la estructura contribuyen a la eficiencia energética del edificio.
La vegetación, formada por especies como tumbergias, guaimbês, singônios, jabuticabeiras, dinheiro-em-penca y alamandas amarillas, aporta vida y color al entorno urbano, ofrece confort térmico a los espacios interiores y establece un diálogo armonioso con los árboles que ya se encuentran en el terreno.
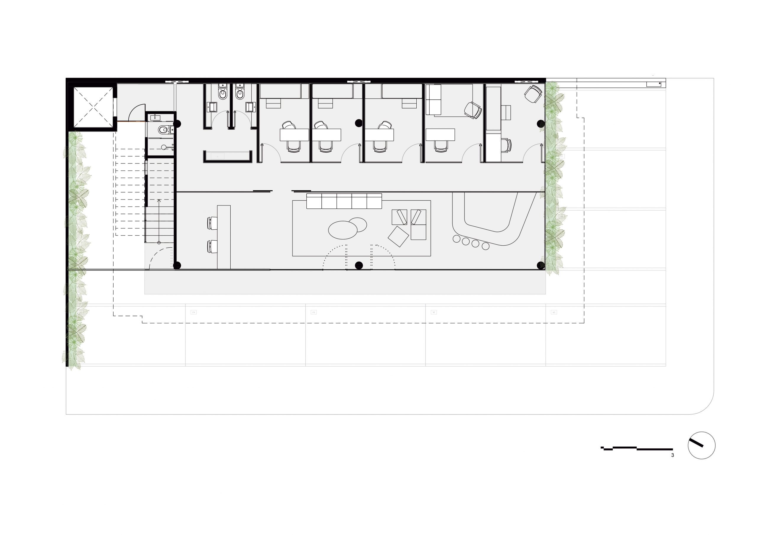
En las áreas internas, la configuración de planta abierta permite flexibilidad para la creación de múltiples programas y distribuciones.
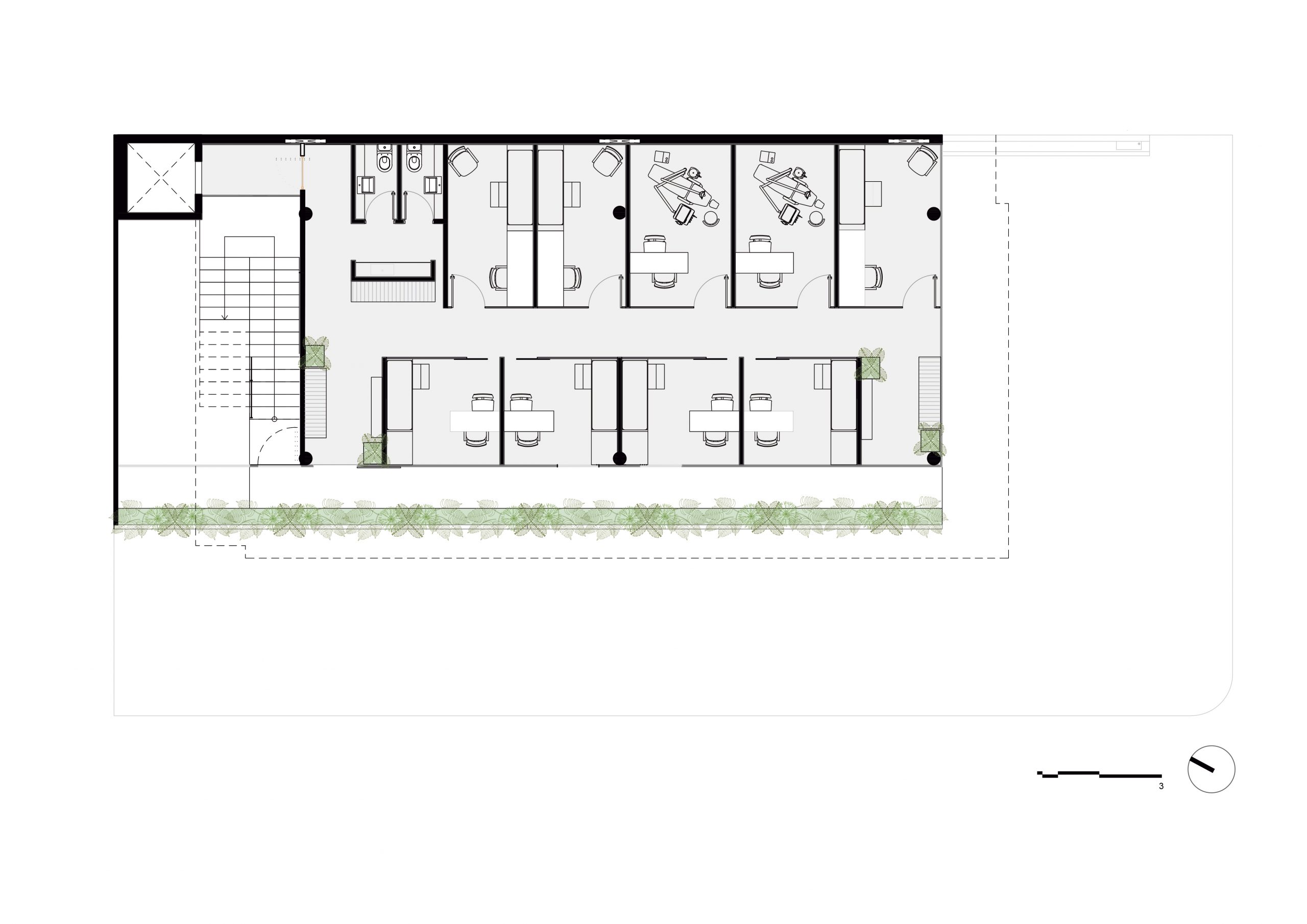
En el primer piso, con techos de doble altura, el edificio alberga recepción, sala de espera, cafetería, salas comerciales, baños y almacenamiento externo. En el primer piso, hay nueve salas comerciales más, áreas de espera y baños. La segunda planta se ha reservado para la oficina propia del proyecto, con recepción, sala de estar, puestos de trabajo, sala de reuniones, despensa, aseos, baño, trastero y zona de relax exterior.
Datos técnicos
Proyecto: VIPE 201
Ubicación: Manaos, Amazonas, Brasil
Año del proyecto: 2024
Superficie: 610 m²
Arquitectura: Vipe Arquitectura
Arquitecto principal: Vitor Venâncio Pessoa
Colaboradores: Jéssica Vitoriano, Danilo Medeiros, Renan Marques, Acácia Souza, Ailyme Buriche, Letícia Rodrigues y Sarah Bícego
Paisajismo: Hana Eto Gall
Arte: Juliana Tizzato
Estructura y Proyectos Complementarios: TECPRO Engenharia
Pretensado: RM Protensão
Edificios prefabricados: Arcoma da Amazônia